精美简单的2层别墅建筑施工CAD图纸

附件详情

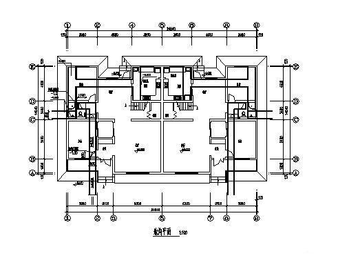
该资料为售楼处建筑 设计方案
工程建筑面积约为:535.18平方米、建筑设计结构形式为:砖混结构、层数为:3层、高度为: 9.568米
这份参考资料包括资料目录、图纸说明、工程作法、门窗表、各层建筑平面、立面、剖面图、檐口作法等,共10张图纸
设计功能包括:卧室、客厅等。

以下是附件的其中一部分截图,共4张,您也可以 搜索 更多您想要的资源
  • 精美简单的2层别墅建筑施工CAD图纸 - 1
    第 1 张图
  • 精美简单的2层别墅建筑施工CAD图纸 - 2
    第 2 张图
  • 精美简单的2层别墅建筑施工CAD图纸 - 3
    第 3 张图
  • 精美简单的2层别墅建筑施工CAD图纸 - 4
    第 4 张图
以上是部分截图,请下载附件后查看完整高清内容
网站首页  | 
本站所有内容均由网友自主分享,仅供学习和参考,如有侵权内容或者违法行为,请及时联系站长删除。