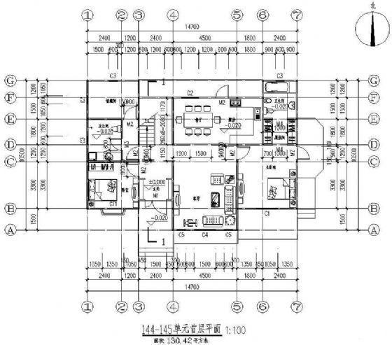
2层节能别墅建筑CAD图纸
- 发布时间:2022-08-15
- 评论次数:0
- 浏览次数:0
- 文件大小:0.24 MB
- 收藏次数:0
-
文件名称:
附件-995898879889850808099.rar
相关下载
- 2层节能别墅建筑设计CAD图纸
- 2层节能别墅建筑设计CAD图纸
- 屋面节能建筑.pdf
- 2层西班牙式高级别墅建筑施工CAD图纸(建筑节能模型)
- 2层西班牙式独栋别墅建筑施工CAD图纸(建筑节能模型)
- 2层双拼别墅建筑施工CAD图纸(建筑节能模型)
- 4层别墅建筑设计施工套CAD图纸(带节能设计)
- 小区3层别墅住宅建筑施工套CAD图纸(节能设计计算及分析)
- 西班牙风格节能型2层别墅建筑施工套CAD图纸
- 公共建筑工程建筑设计节能——办公楼节能计算.pdf
- 低技术建筑节能设计浅析
- 建筑节能概况及经典案例
- 小议建筑设计与建筑节能.pdf
- 3层豪园三期别墅区建筑结构水电施工图纸(节能
- 小区框架结构3层别墅住宅楼建筑施工套CAD图纸(节能设计计算及分析)
- 农村节能住宅建筑方案设计CAD图纸
- 10层医院建筑施工CAD图纸(节能设计)
- 5层高校分校节能型学生生活综合服务楼建筑施工套图纸(节能设计)
- 4层豪园三期别墅区(A4型别墅)建筑结构水电施工CAD图纸(节能
- 3层豪园三期别墅区(A2型别墅)建筑结构水电施工CAD图纸(节能
全部评论
评论网友评论仅友表达个人看法,并不表明本站同意其观点,不得发布违反法律法规的内容!
