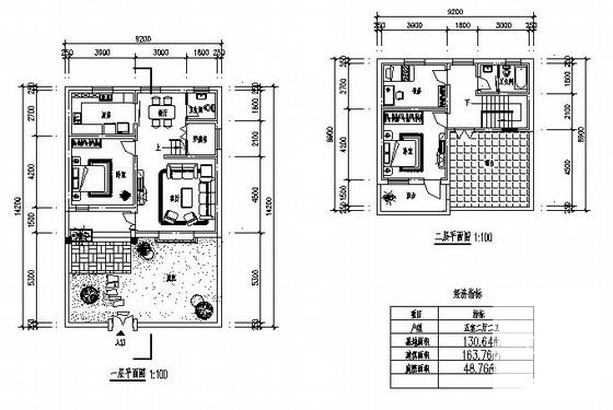
新农村2层住宅楼建筑方案设计CAD图纸
- 发布时间:2022-08-15
- 评论次数:0
- 浏览次数:0
- 文件大小:7.57 MB
- 收藏次数:0
-
文件名称:
附件-995898878795908887055.rar
相关下载
- 新农村住宅建筑方案设计CAD图纸
- 新中式风格2层新农村住宅楼建筑方案设计CAD图纸
- 2层新农村住宅楼建筑方案设计CAD图纸
- 2层新农村住宅楼建筑方案设计CAD图纸
- 2层新农村住宅楼建筑方案设计CAD图纸
- 新农村3层住宅楼建筑方案设计图纸(高10.51米)
- 3层新农村住宅楼建筑CAD图纸
- 新农村3层住宅楼建筑CAD图纸
- 新农村建设3层村民住宅楼建筑结构方案设计施工图纸
- 新农村建设砖混结构2层农村住宅楼建筑方案设计CAD图纸
- 联体三开间新农村别墅建筑方案设计CAD图纸
- 2层新农村住宅建筑方案设计CAD初设图纸
- 新农村住宅建筑施工CAD图纸
- 新农村建设2层坡顶住宅楼方案设计CAD图纸(说明)
- 2层新农村住宅楼方案设计图纸(10.2x9.6米)(平面图)
- 新农村2层坡顶住宅楼建筑设计CAD图纸
- 3层新农村小康住宅楼建筑CAD施工图纸
- 简单的新农村3层住宅楼建筑CAD施工图纸
- 140平两层新农村别墅小户型建筑方案设计初设图纸+SU
- 新农村2层住宅楼建筑设计方案
全部评论
评论网友评论仅友表达个人看法,并不表明本站同意其观点,不得发布违反法律法规的内容!
