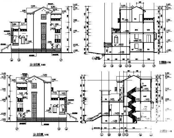
4层联排别墅方案设计(砌体结构)
- 发布时间:2022-08-12
- 评论次数:0
- 浏览次数:0
- 文件大小:0.83 MB
- 收藏次数:0
-
文件名称:
附件-995898855895096588787.rar
相关下载
- 联排别墅结构CAD图纸
- 联排别墅CAD图纸
- 联排别墅户型分析
- 4层砌体结构联排别墅结构CAD施工图纸(条形基础)
- 砌体结构联排别墅结构设计CAD施工图纸(条形基础).dwg
- 3层现代风格砌体结构联排别墅建筑施工套CAD图纸
- 3层联排别墅CAD施工图纸(砌体结构、含效果图纸)
- 6层联排别墅砌体结构建筑施工CAD图纸(卫生间详图)
- 3层砌体结构联排别墅设计CAD施工图纸
- 联排别墅节点大样图纸
- 联排别墅建筑图纸
- 联排别墅建筑CAD图纸
- 联排别墅电气施工图纸.
- 联排别墅施工CAD图纸
- 3层中式联排别墅建筑施工CAD图纸(八联排)
- 联排别墅建筑和结构CAD施工图纸
- 4层联排别墅结构CAD施工图纸
- 联排别墅结构CAD施工图纸.dwg
- 联排别墅区建筑群方案设计CAD施工图纸
- 砖混结2层联排别墅建筑方案设计CAD图纸
全部评论
评论网友评论仅友表达个人看法,并不表明本站同意其观点,不得发布违反法律法规的内容!
