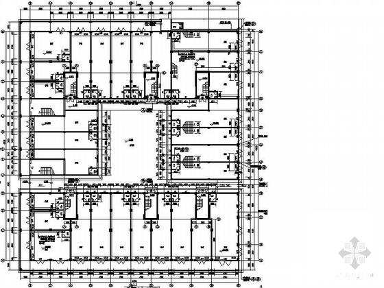
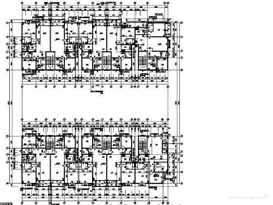
框架结构7层住宅楼建筑施工套CAD图纸
- 发布时间:2022-08-10
- 评论次数:0
- 浏览次数:0
- 文件大小:4.72 MB
- 收藏次数:0
- 
								文件名称: 附件-995897997678898066009.rar 附件-995897997678898066009.rar
								相关下载
							
						- 小区框架结构3层别墅住宅楼建筑施工套CAD图纸(节能设计计算及分析)
- 世纪花园住宅小区18层框架结构住宅楼建筑施工套CAD图纸
- 套高层住宅楼建筑CAD图纸
- 3层框架结构别墅建筑施工套CAD图纸
- 框架结构6层公寓建筑施工套CAD图纸
- 6层框架结构医药宿舍楼建筑施工套CAD图纸
- 2层花园会所建筑施工套CAD图纸(节能型)(框架结构)
- 6层住宅楼建筑CAD图纸施工套图纸
- 10层住宅楼(6号)建筑施工套CAD图纸
- 7层住宅楼建筑施工套CAD图纸(转角型)
- 现代风格7层板式住宅楼建筑施工套CAD图纸
- 五套1层住宅楼建筑施工CAD图纸
- 26层双塔住宅楼建筑施工套CAD图纸
- 5层住宅楼建筑施工套CAD图纸(带节能设计)
- 新城11层住宅楼建筑施工套CAD图纸
- 18层住宅楼建筑施工套CAD图纸(带节能设计及说明)
- 现代住宅楼小区3层别墅建筑施工套CAD图纸
- 森林小镇住宅楼区2层欧式俱乐部建筑施工套CAD图纸
- 单层厂房建筑施工套图纸
- 12层框架结构住宅楼建筑施工CAD图纸(框架结构)
全部评论
						
							评论网友评论仅友表达个人看法,并不表明本站同意其观点,不得发布违反法律法规的内容!
						
						
 
	              	 
	              	 
	              	 
	              	