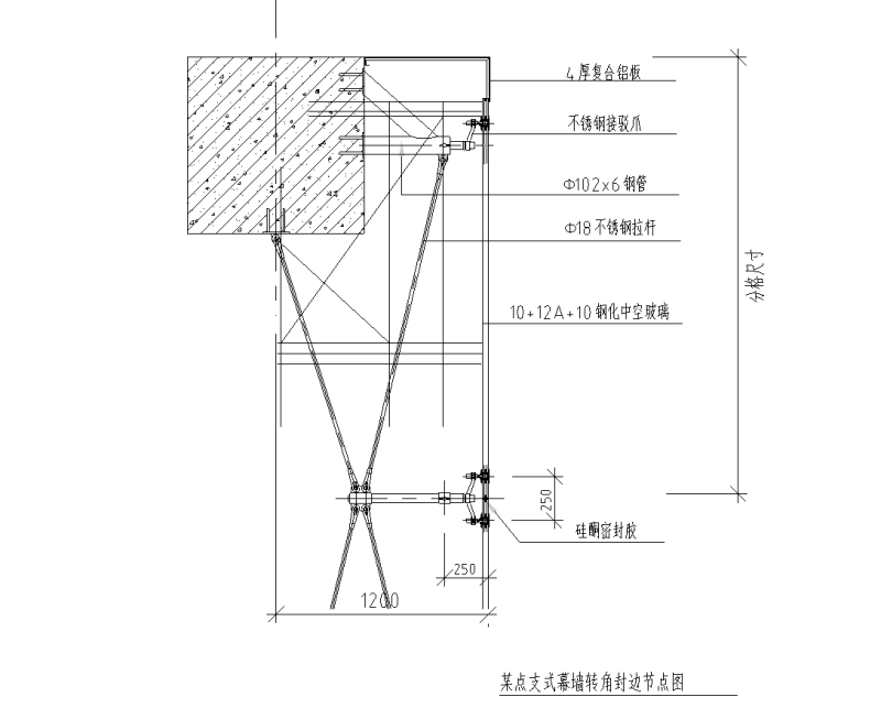
290个点支式全玻璃幕墙节点详图纸cad
- 发布时间:2022-06-02
- 评论次数:0
- 浏览次数:0
- 文件大小:24.13 MB
- 收藏次数:0
-
文件名称:
附件-996789856908558507.rar
相关下载
- 点支式玻璃幕墙节点大样图纸
- 点支式玻璃幕墙CAD节点图纸
- 点支式玻璃幕墙垂直CAD节点图纸
- 点支式玻璃幕墙垂直CAD节点图纸
- 玻璃幕墙CAD节点图纸_点支式/吊挂式/明框/隐框式
- 16套吊挂式全玻璃幕墙节点CAD详大样图
- 建筑工程悬挂外倾式点支全玻璃幕墙施工工法(公共建筑)
- 多种点支式玻璃幕墙节点大样图纸
- 点支式玻璃幕墙中部纵剖节点构造详细设计CAD图纸(四)
- 点支式玻璃幕墙抗风柱CAD节点图纸
- 点支式玻璃幕墙纵剖CAD节点图纸(一)
- 点支式玻璃幕墙中部纵剖CAD节点图纸(六)
- 点支式玻璃幕墙中部纵剖CAD节点图纸(五)
- 点支式玻璃幕墙节点详细设计CAD图纸
- 点支式玻璃幕墙纵剖CAD节点图纸
- 点支式玻璃幕墙隐框幕横剖CAD节点图纸(一)
- 点支式玻璃幕墙中部纵剖CAD节点图纸(四)
- 点支式玻璃幕墙顶部纵剖CAD节点图纸(三)
- 点支式玻璃幕墙底部纵剖CAD节点图纸(一)
- 点支式玻璃幕墙中部纵剖CAD节点图纸(三)
全部评论
评论网友评论仅友表达个人看法,并不表明本站同意其观点,不得发布违反法律法规的内容!
