单层框架结构制药产业园消控门卫含计算书平面布置图及大样图

  • 建筑类别:医疗,工业建筑,其他
  • 建筑高度类型:单层建筑
  • 建筑地上层数:1层
  • 图纸设计深度:施工图
  • 民用建筑设计使用年限:50年
  • 建筑设计结构形式:钢筋混凝土结构
  • 钢筋混凝土结构:框架
  • 基础形式 :桩基础
  • 结构安全等级:二级
  • 地基基础设计等级:丙级
  • 抗震设防烈度:6度抗震
  • 风压:0.3kN/平方米
  • 参考图纸:7张
  • 设计年代:近代
该附件为: 单层框架结构医药工业园消控门卫含计算书 格式为CAD+PDF双版本,计算书格式为Word,。
一、资料目录:
  • 结构设计总说明,基础平面布置图,柱平面布置图,基础大样图,梁平面配筋图,板配筋图, 屋面板配筋平面图, 等共7张图。
二、项目概要:
  1. 该项目为 医药食品新型工业园消控门卫 ,根据建筑使用功能的重要性,该项目建筑抗震设防类别为标准设防类(丙类)。该项目主体结构为地上单层钢筋混凝土框架结构,主要屋面结构标高为3.000m,室内外高差 0.30m,无层地下室。
  2. 该项目结构的设计合理使用年限为 50年。基本风压 Wo = 0.30KN/平方米,基本雪压Wo=0.20KN/平方米,抗震设防烈度为6度(1组、0.05g),建筑结构安全等级为二级。根据工程地质勘察报告,场地为 II类场地,地基基础设计等级为丙级。
  3. 该项目场地地段为抗震一般地段。建筑抗震设防类别为:标准设防类(丙类)。主体结构框架的抗震等级为:四级。建筑耐火等级为:二级。地面以上室内环境类别为一类,地上外露环境及地面以下环境类别为二(a)类。
三、相关图片:
一层梁配筋平面图.jpg
屋面板配筋平面图.jpg
屋面梁配筋平面图.jpg
柱平面布置图.jpg
桩基平面布置图.jpg
以下是附件的其中一部分截图,共5张,您也可以 搜索 更多您想要的资源
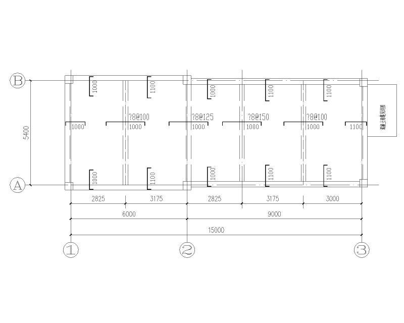
  • 一层梁配筋平面图
    一层梁配筋平面图
  • 屋面板配筋平面图
    屋面板配筋平面图
  • 屋面梁配筋平面图
    屋面梁配筋平面图
  • 柱平面布置图
    柱平面布置图
  • 桩基平面布置图
    桩基平面布置图
以上是部分截图,请下载附件后查看完整高清内容
网站首页  | 
本站所有内容均由网友自主分享,仅供学习和参考,如有侵权内容或者违法行为,请及时联系站长删除。