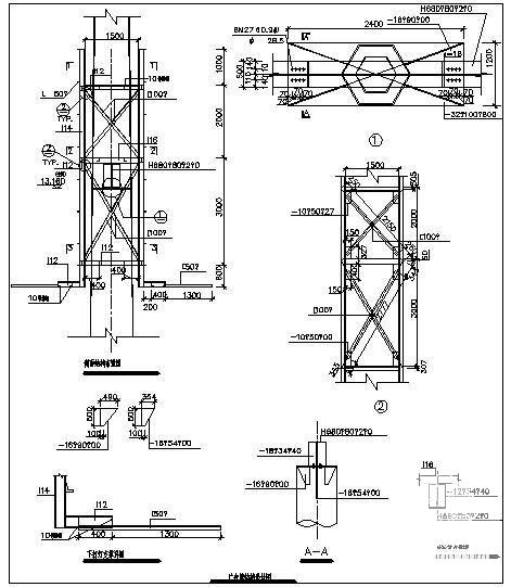
广告牌结构设计节点构造详图纸
- 发布时间:2022-02-20
- 评论次数:0
- 浏览次数:0
- 文件大小:0.04 MB
- 收藏次数:0
- 
								文件名称: 附件-995795786059570570.rar 附件-995795786059570570.rar
								相关下载
							
						- 单面广告牌结构节点构造CAD详施工图纸
- 结构节点构造详施工图纸
- 砌体结构构造大样节点构造详施工图纸
- 广告牌设计节点构造设计详图纸
- 广告牌排架节点构造CAD详图纸
- 钢结构广告牌节点构造详图纸cad
- 广告牌的结构设计节点构造CAD详图纸
- 广告牌结构设计节点构造CAD详图纸.dwg
- 广告牌的结构设计节点构造CAD详图纸.dwg
- 煤仓钢结构节点构造详施工图纸
- 单斜V节点构造详设计图纸
- 管道钢支架节点构造CAD详施工图纸
- 50个天窗节点构造CAD详大样图——建筑CAD详大样图
- 桩基础节点构造CAD详大样图
- 坡屋面檐口节点构造CAD详大样图
- 重力挡土墙节点构造CAD详大样图
- 钢管柱节点构造CAD详大样图大全
- 剪力墙平法节点构造详施工图纸扶壁柱构造
- 坡屋面平法构造及补充大样节点构造详施工图纸cad
- 现浇框架节点箍筋节点构造详设计图
全部评论
						
							评论网友评论仅友表达个人看法,并不表明本站同意其观点,不得发布违反法律法规的内容!
						
						
