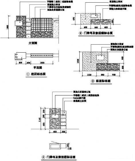
组团标志墙施工图纸平面图及剖面图,立面图
- 发布时间:2022-02-20
- 评论次数:0
- 浏览次数:0
- 文件大小:0.35 MB
- 收藏次数:0
- 
								文件名称: 附件-996007809578798608.rar 附件-996007809578798608.rar
								相关下载
							
						- 组团标志墙施工CAD图纸
- 古钟概念标志墙施工详图纸平面图及立面图
- 别墅区标志墙详图纸平面图及立面图
- 热带风格标志墙做法详图纸平面图及立面图
- 花岗岩景墙施工详图纸平面图及剖面图,立面图
- 发光墙施工详图纸平面图及立面图,剖面图
- 特色景观墙施工图纸平面图及剖面图,立面图
- 景墙式挡墙详图纸平面图及立面图、剖面图
- 老人活动场景墙设计平面图及剖面图,立面图
- 坐墙施工大样图纸平面图及立面图,座墙剖面图
- 小区两个标志墙施工全套图纸立面图及侧面图
- 小区流水景墙施工详图纸平面图及立面图、剖面图
- 特色滨水景墙施工详图纸平面图及剖面图,立面图
- 木站台及灯柱细节二平面图及剖面图、立面图
- 希腊式景墙施工详图纸平面图,立面图,剖面图
- 喷水文化墙大样设计图纸平面图及立面图、剖面图
- 标准坐墙做法大样图纸平面图及剖面图,立面图
- 棚架细节施工详图纸平面图及立面图,剖面图
- 听涛阁施工图纸平面图及立面图,剖面图
- 月亮湾水景施工图纸平面图及剖面图,立面图
全部评论
						
							评论网友评论仅友表达个人看法,并不表明本站同意其观点,不得发布违反法律法规的内容!
						
						
