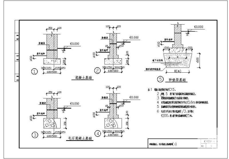
08G08砖墙混凝土、毛石混凝土基础断面节点构造详图纸
- 发布时间:2022-02-20
- 评论次数:0
- 浏览次数:0
- 文件大小:0.03 MB
- 收藏次数:0
- 
								文件名称: 附件-996055065708975855.rar 附件-996055065708975855.rar
								相关下载
							
						- 08G08砖墙混凝土、毛石混凝土基础断面节点构造CAD详图纸(一)
- 毛石混凝土基础节点构造详图纸
- 08G08砖墙石基础断面节点构造详细设计CAD图纸
- 毛石混凝土基础构造详图纸cad
- 毛石混凝土基础节点详图纸cad
- 毛石混凝土基础CAD详图纸
- 毛石基础节点构造CAD详图纸
- 08G08生土墙基础断面节点构造详图纸
- 08G08砖墙与木柱拉接大样节点构造详图纸
- 柱下混凝土独立基础大样及基础表节点构造详施工图
- 毛石砼混凝土基础CAD大样图纸(屋面构造详图)
- 08G08基础型式节点构造详图纸
- 轨梁与砖墙,钢筋混凝土柱联结节点构造CAD详图纸
- 新增混凝土墙与原砖墙的连接节点构造CAD详图纸
- 毛石混凝土条基600节点构造详图纸
- 毛石混凝土条基900节点构造详图纸
- 08G08钢筋混凝土过梁节点构造详图纸
- 砖墙节点构造详细设计CAD图纸
- 砖墙施工节点构造CAD详图纸
- 砖墙节点构造CAD详图纸
全部评论
						
							评论网友评论仅友表达个人看法,并不表明本站同意其观点,不得发布违反法律法规的内容!
						
						
