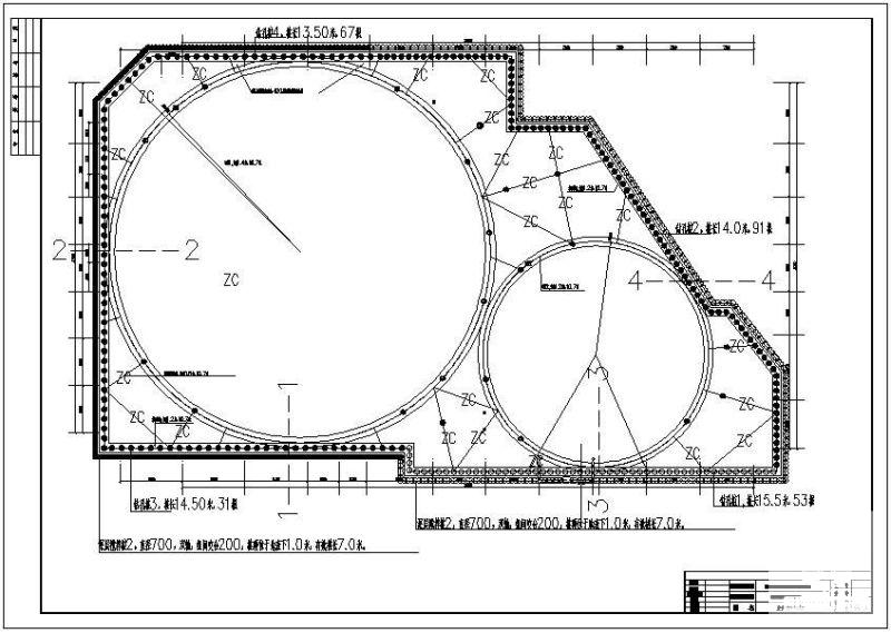
基坑支护结构平面节点构造详图纸
- 发布时间:2022-02-20
- 评论次数:0
- 浏览次数:0
- 文件大小:0.05 MB
- 收藏次数:0
-
文件名称:
附件-996056776869799607.rar
相关下载
- 工程基坑支护CAD详施工图纸
- 基坑桩锚支护剖面节点构造详图纸
- 组合基坑支护方案节点构造详图纸
- 墩基坑钢板桩支护节点构造CAD详图纸
- 基坑支护节点CAD图纸
- 基坑支护节点构造详图纸平面布置图
- 基坑支护节点构造CAD详图(10页图纸)(施工平面布置图)
- 深基坑圆形混凝土内支撑支护节点CAD详大样图
- 基坑锚杆支护剖面及节点CAD详大样图
- 基坑支护钢支撑节点CAD图纸
- 单排桩基坑支护节点CAD图纸
- 深基坑支护结构常用节点CAD详图纸
- 结构节点构造详施工图纸
- 砌体结构构造大样节点构造详施工图纸
- 基坑支护CAD图纸
- 基坑喷锚支护立剖面节点构造设计详图纸
- 墩基坑钢板桩支护节点构造详细设计CAD图纸
- 院喷锚基坑支护设计节点构造详细CAD图纸
- 组合基坑支护方案
- 工程基坑支护降水
全部评论
评论网友评论仅友表达个人看法,并不表明本站同意其观点,不得发布违反法律法规的内容!
