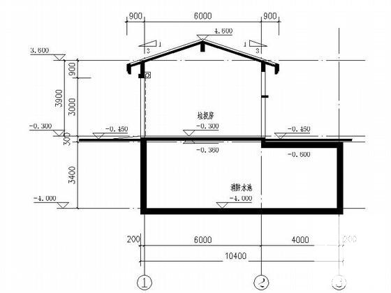
122平米小学水泵房建筑施工图纸(高4米)
- 发布时间:2021-11-25
- 评论次数:0
- 浏览次数:0
- 文件大小:0.27 MB
- 收藏次数:0
- 
								文件名称: 附件-995887079780687996705.rar 附件-995887079780687996705.rar
								小学建筑图纸下载
							
						- 小学电气CAD施工图纸(高12.3米)
- 5层框架结构小学建筑施工CAD图纸(高24.9米)
- 3层小学教学楼建筑施工CAD图纸(高11米)
- 4层小学建筑施工CAD图纸(高15米)(卫生间详图)
- 5层小学综合楼建筑施工图纸(高19米)
- 两层十二班小学建筑方案图纸(高14.5米)(CAD平面图)
- 小学单层砖混结构大门建筑方案设计CAD图纸(高6米)
- 小学水泵房建筑施工图纸_平面图_立面图_剖面图_cad
- 3层小学教学楼建筑施工CAD图纸(高10.5米)(卫生间详图)
- 外国语4层框架剪力墙小学建筑施工CAD图纸(高20.2米)
- 4层框架结构小学建筑施工CAD图纸(高27米)(卫生间详图)
- 5层小学教学楼给排施工图纸(高14米)
- 小学单层食堂建筑施工CAD图纸
- 27套小学用建筑全套施工
- 粮油水泵房建筑结构CAD图纸
- 第一实验小学综合楼、食堂、水泵房给排水CAD大样图
- 苏州小学门卫及水泵房详图,平面图,剖面图和系统图
- 小学宿舍建筑设计CAD图纸
- 小学区4层框架结构教学楼建筑施工CAD图纸(高20米)(卫生间详图)
- 水泵房电气施工图纸
全部评论
						
							评论网友评论仅友表达个人看法,并不表明本站同意其观点,不得发布违反法律法规的内容!
						
						
 
	              	 
	              	 
	              	