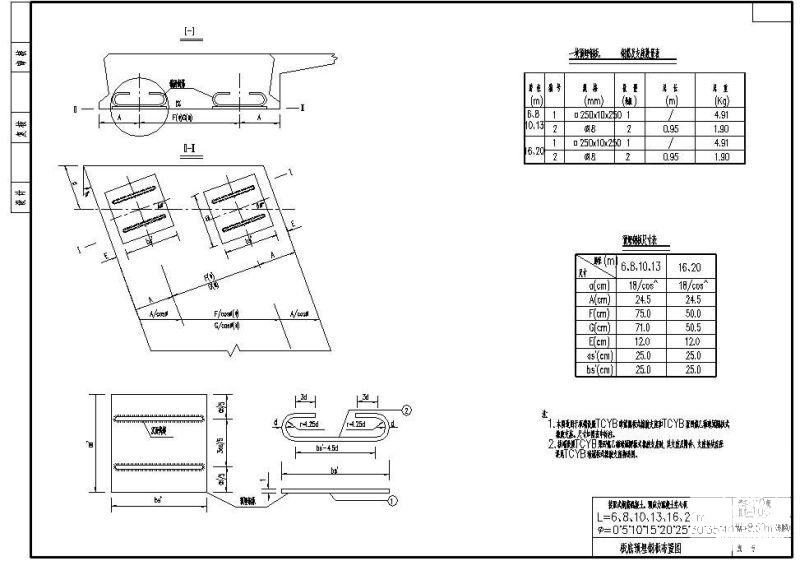
W8.50m装配式钢筋混凝土、预应力混凝土空心板板底预埋钢板布置节点详图
- 发布时间:2022-02-20
- 评论次数:0
- 浏览次数:0
- 文件大小:0.08 MB
- 收藏次数:0
-
文件名称:
附件-996056750576066578.rar
预应力混凝土空心板下载
- 全套预应力混凝土空心板设计通用图纸.dwg
- 预应力混凝土空心板设计图纸.dwg
- 18m预应力混凝土空心板A级(边板)节点构造详图
- 18m预应力混凝土空心板B级(边板)节点构造详图
- 20m预应力混凝土空心板A级(边板)节点构造详图
- 20m预应力混凝土空心板B级(边板)节点构造详图
- 22m预应力混凝土空心板A级(边板)节点构造详图
- 22m预应力混凝土空心板B级(边板)节点构造详图
- 后张预应力空心板-边板预应力钢束构造图纸
- 18m预应力混凝土空心板A级(中板)节点构造详图
- 18m预应力混凝土空心板B级(中板)节点构造详图
- 20m预应力混凝土空心板A级(中板)节点构造详图
- 20m预应力混凝土空心板B级(中板)节点构造详图
- 22m预应力混凝土空心板A级(中板)节点构造详图
- 22m预应力混凝土空心板B级(中板)节点构造详图
- 预应力混凝土空心板扒杆双钩吊鱼法吊装施工方案
- 高速公路先张法预应力混凝土空心板梁施工方案
- 公路预应力混凝土空心板梁架设施工方案
- 16米空心板构造CAD图纸设计(设计说明)(预应力混凝土桥)
- 20米预应力混凝土连续空心板上部构造-公路I级标准CAD图纸
全部评论
评论网友评论仅友表达个人看法,并不表明本站同意其观点,不得发布违反法律法规的内容!
