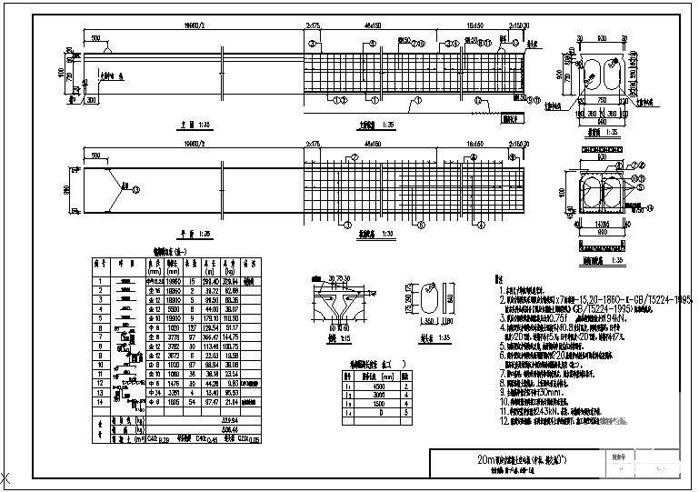
20m预应力混凝土空心板A级(中板)节点构造详图
- 发布时间:2022-02-20
- 评论次数:0
- 浏览次数:0
- 文件大小:0.06 MB
- 收藏次数:0
-
文件名称:
附件-996055068098009067.rar
相关下载
- 20m预应力混凝土空心板B级(中板)节点构造详图
- 20m预应力混凝土空心板A级(边板)节点构造详图
- 18m预应力混凝土空心板A级(中板)节点构造详图
- 22m预应力混凝土空心板A级(中板)节点构造详图
- 20m预应力混凝土空心板B级(边板)节点构造详图
- 18m预应力混凝土空心板B级(中板)节点构造详图
- 22m预应力混凝土空心板B级(中板)节点构造详图
- 18m预应力混凝土空心板A级(边板)节点构造详图
- 22m预应力混凝土空心板A级(边板)节点构造详图
- 20m、22m预应力混凝土空心板(斜交中板端部)节点构造详图
- 20m空心板中板普通钢筋构造节点CAD详图纸
- 18m预应力混凝土空心板B级(边板)节点构造详图
- 22m预应力混凝土空心板B级(边板)节点构造详图
- 20m、22m预应力混凝土空心板(斜交边板端部)节点构造详图
- 20m预制空心板中板钢筋布置节点CAD详图纸设计
- L16m装配式预应力混凝土空心板中板钢筋节点构造详图纸
- L16m装配式预应力混凝土空心板中板钢筋节点构造详图
- L20m装配式预应力混凝土空心板中板钢筋节点构造详图纸
- L10m装配式钢筋混凝土空心板中板钢筋节点构造详图
- L6m装配式钢筋混凝土空心板中板钢筋节点构造详图纸
全部评论
评论网友评论仅友表达个人看法,并不表明本站同意其观点,不得发布违反法律法规的内容!
