8#馆挡土墙平面图及立面图

该附件为 场馆 挡土墙施工图栏杆详图展开立面图CAD
主要包括:总平面图、B段栏杆标准段立面图、B段栏杆剖面1-1详图、栏杆立面详图、8#场馆挡墙栏杆平面图、8#场馆挡墙栏杆展开立面图等
CAD格式
图纸部分预览截图:
总平面图.jpg
B段栏杆剖面.jpg
B段栏杆标准段立面图.jpg
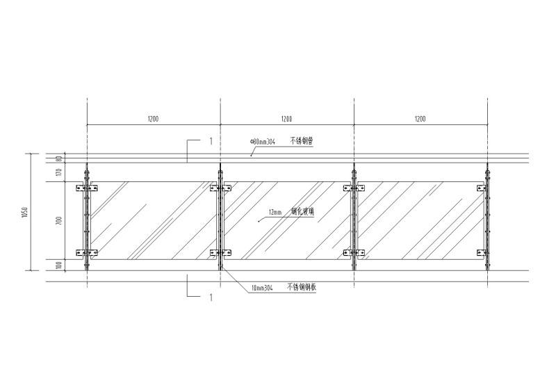
8#场馆挡墙栏杆展开立面图A.jpg
以下是附件的其中一部分截图,共4张,您也可以 搜索 更多您想要的资源
  • 总平面图
    总平面图
  • B段栏杆剖面
    B段栏杆剖面
  • B段栏杆标准段立面图
    B段栏杆标准段立面图
  • 8#场馆挡墙栏杆展开立面图A
    8#场馆挡墙栏杆展开立面图A
以上是部分截图,请下载附件后查看完整高清内容
网站首页  | 
本站所有内容均由网友自主分享,仅供学习和参考,如有侵权内容或者违法行为,请及时联系站长删除。