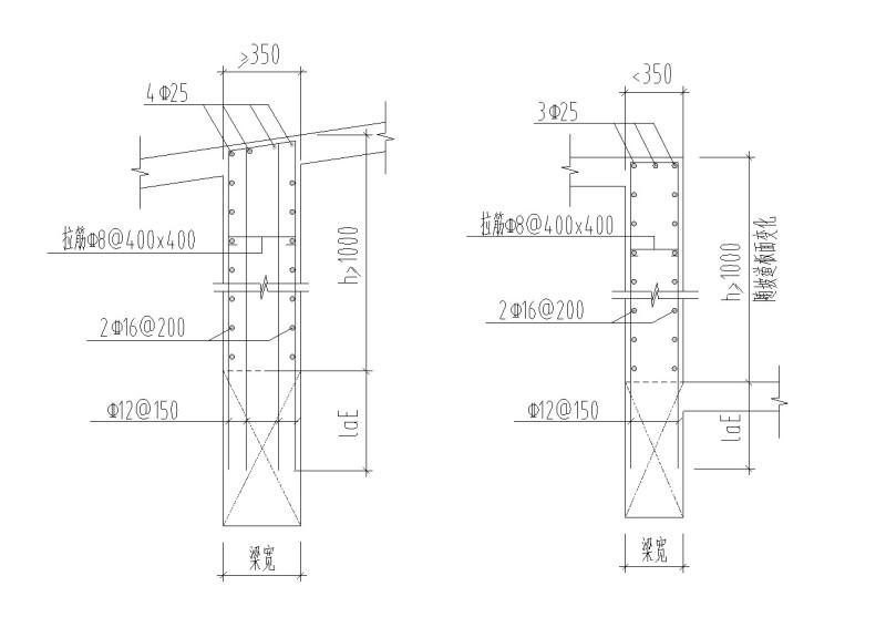
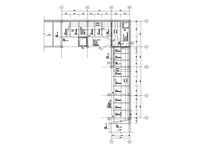
地下汽车坡道节点详图纸构造图纸平面图及剖面图
- 发布时间:2022-02-20
- 评论次数:0
- 浏览次数:0
- 文件大小:2.58 MB
- 收藏次数:0
-
文件名称:
附件-996559769955887699.dwg
地下汽车坡道图下载
- 弧形地下汽车坡道结构详图纸
- 地下汽车坡道结构详图纸2018
- 地下车库汽车坡道详图纸(CAD)
- 地下5层汽车坡道剖面图节点详图及平面图
- 汽车坡道详图纸
- 地下两层车库汽车坡道结构设计施工cad图和坡道详图
- 汽车坡道详图纸详图
- 汽车坡道详图纸.dwg
- 汽车坡道节点CAD详图纸
- 汽车坡道节点构造详图纸cad
- 地下2层汽车坡道详图纸平面剖面图纸
- 汽车坡道地下2层平面图纸及剖面图纸
- 汽车坡道地下5层平面图纸剖面图纸节点详图
- 地下车库汽车坡道节点构造详细设计CAD图纸
- 地下两层车库汽车坡道结构CAD施工图纸
- 地下上车库汽车坡道节点构造CAD详图纸.dwg
- 地下车库汽车坡道节点构造CAD详图纸.dwg
- 地下室车库坡道节点cad构造详图_车库坡道平面图和剖面图
- 汽车旋转坡道雨棚结构施工方案图纸
- 超高层酒店建筑汽车坡道CAD详图纸
全部评论
评论网友评论仅友表达个人看法,并不表明本站同意其观点,不得发布违反法律法规的内容!
