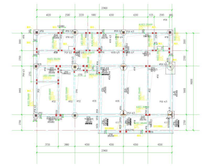
2层框架结构戒毒所传染病房结施平面布置图
- 发布时间:2022-02-20
- 评论次数:0
- 浏览次数:0
- 文件大小:1.81 MB
- 收藏次数:0
- 
								文件名称: 附件-996579709975095899.dwg 附件-996579709975095899.dwg
								戒毒所施工图下载
							
						- 戒毒所规划方案
- 强制隔离戒毒所后勤保障用房暖通施工图纸平面图
- 2层强制隔离戒毒所备勤宿舍暖通施工图纸平面图
- 4层戒毒所学员宿舍电气设计CAD施工图纸
- 戒毒所综合楼电气设计CAD施工图纸
- 4层戒毒所学员宿舍电气CAD施工图纸
- 戒毒所综合楼电气CAD施工图纸全套
- 底框结构戒毒所结构CAD施工图纸
- 底框结构戒毒所结构CAD施工图纸.dwg
- 戒毒所规划设计CAD图纸方案(建筑面积)
- 戒毒所劳动厂房施工组织设计(预应力砼管桩)
- 强制戒毒所5层楼照明设计CAD图纸
- 戒毒所底框结构设计CAD图纸.dwg
- 底框结构戒毒所结构设计CAD图纸.dwg
- 2层强制隔离戒毒所康复居住区暖通设计施工图平面图
- 3层强制隔离戒毒所康复居住区暖通施工图纸平面图
- 2层强制隔离戒毒所康复居住区暖通施工图纸平面图
- 特类人员强制隔离戒毒所综合楼暖通施工图纸平面图
- 2层强制隔离戒毒所干警综合楼暖通施工图纸平面图
- 3层强制隔离戒毒所行政办公楼暖通施工图纸平面图
全部评论
						
							评论网友评论仅友表达个人看法,并不表明本站同意其观点,不得发布违反法律法规的内容!
						
						
 
	              	 
	              	 
	              	 
	              	 
	              	