立交停车场及配套设施建筑施工图纸平面图及立面图

  • 交通建筑:停车楼(库)
  • 建筑高度类型:多层建筑
  • 建筑设计结构形式:钢筋混凝土结构
  • 图纸设计深度:施工图
  • 项目所在地:贵州
  • 图纸设计格式:天正建筑CAD 7.0,CAD2000
  • 参考图纸:30+张
  • 设计年代:近代
该附件为 立交停车场及配套设施 建筑施工图 ,图纸资料丰富。
该项目规划总占地面积17659.16平方米,总建筑面积947.07平方米。
其中地上建筑面积774.58平方米,地下建筑面积172.49平方米。
停车楼建筑设计面积:373.29平方米,占地面积247.88平方米。
管理用房、工程面积:428.29平方米。
机械停车楼立面图.jpg
管理用房立面图.jpg
管理用房一层平面图.jpg
机械停车楼二层平面图.jpg
机械停车楼屋顶层平面图.jpg
机械停车楼一层平面图.jpg
消防泵房负一层平面图.jpg
雨水管连接详图.jpg
以下是附件的其中一部分截图,共8张,您也可以 搜索 更多您想要的资源
  • 机械停车楼立面图
    机械停车楼立面图
  • 管理用房立面图
    管理用房立面图
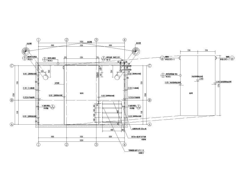
  • 管理用房一层平面图
    管理用房一层平面图
  • 机械停车楼二层平面图
    机械停车楼二层平面图
  • 机械停车楼屋顶层平面图
    机械停车楼屋顶层平面图
  • 机械停车楼一层平面图
    机械停车楼一层平面图
  • 消防泵房负一层平面图
    消防泵房负一层平面图
  • 雨水管连接详图
    雨水管连接详图
以上是部分截图,请下载附件后查看完整高清内容
网站首页  | 
本站所有内容均由网友自主分享,仅供学习和参考,如有侵权内容或者违法行为,请及时联系站长删除。