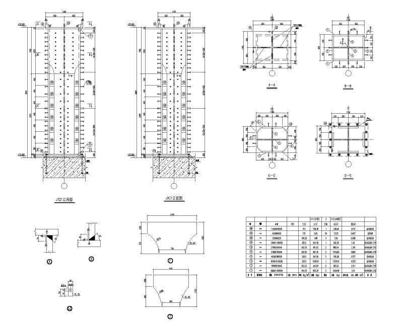
劲性柱详图纸
- 发布时间:2022-02-20
- 评论次数:0
- 浏览次数:0
- 文件大小:0.75 MB
- 收藏次数:0
- 
								文件名称: 附件-996088900750768855.zip 附件-996088900750768855.zip
								劲性柱详图下载
							
						- 站房劲性钢柱安装方案cad节点详图
- 斜拉大桥主塔劲性骨架钢筋节点CAD详图纸
- 2层劲性钢骨柱框架结构服务设施建筑结构CAD施工图纸
- 转换层钢管叠合柱一钢骨劲性混凝土梁组合结构施工技术.pdf
- 劲型柱梁钢结构加工制作及安装施工方案cad节点详图
- 连续钢构箱梁特大桥引桥薄壁空心墩劲性骨架布置节点CAD详图纸设计
- 箱梁合拢段劲性骨架构造CAD图纸
- 劲性桩加锚杆深基坑支护CAD施工图纸
- 159米高悬索桥索塔施工劲性骨架图纸.dwg
- 20层公共建筑劲性混凝土结构设计图纸_cad
- 劲性骨架混凝土拱结构施工阶段的稳定性分析.pdf
- 浅谈劲性钢筋混凝土结构施工技术措施.pdf
- 159米高悬索桥索塔施工劲性骨架CAD施工图纸.dwg
- 9418094m预应力混凝土连续刚构主墩墩身劲性骨架布置节点CAD详图纸设计
- S450K20(K50/50)附着式塔吊施工方案(200m劲性钢结构基础),平面布置图
- 劲钢混凝土结构施工技术.pdf
- 5层异形柱框架结构保障性住房结构施工大样图
- 梁上起柱LZ柱根节点构造详图纸
- 墙上起柱QZ柱根节点构造详图纸
- 包柱,柱式节点详图纸(CAD)
全部评论
						
							评论网友评论仅友表达个人看法,并不表明本站同意其观点,不得发布违反法律法规的内容!
						
						
