admin
|
退出
|
登录
|
注册
|
0
积分
|
赚取积分
|
VIP领取积分
|
帮助中心
|
首页
【知石网】是一个专业资料分享学习平台,本站提供大量施工技术文档和设计下载。
首页
施工图纸
施工方案
施工组织
施工交底
合同表格
建筑结构
节点详图
毕业设计
平面图纸
景观设计
电气知识
环保知识
您当前位置:
首页
»
其他文档
»
其他资料
»
铁艺大门施工详图纸
铁艺大门施工详图纸
资料简介
赚取积分
搜索更多资源
附件详情
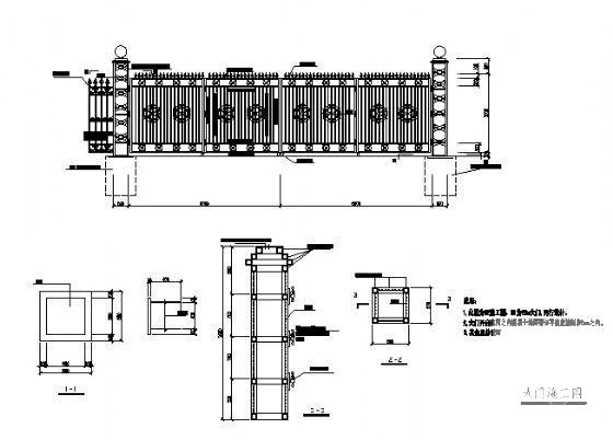
铁艺大门的施工详图,包括大门的各方钢规格,尺寸,间距全有,还有铁艺门柱的施工图
以下是附件的其中一部分截图,共1张,您也可以
搜索
更多您想要的资源
铁艺大门施工图 - 1
以上是部分截图,请下载附件后查看完整高清内容
发布时间:2022-02-20
评论次数:0
浏览次数:0
文件大小:0.14 MB
收藏次数:0
文件名称:
附件-996977009997085687.rar
下载信息
加入收藏
赚取积分
立即下载
对不起,系统繁忙,请稍后再试,或联系管理员
对不起,您的积分余额不足,请
充值积分
恭喜购买成功!请
下载文件
铁艺大门施工图下载
铁艺造型大门
铁艺大门施工CAD图纸
铁艺大门施工CAD图纸
造型铁艺大门CAD施工图纸
小区入口铁艺大门CAD施工图纸
小区铁艺大门CAD施工图纸
铁艺大门CAD施工图纸.dwg
铁艺大门设计CAD详图纸——泛亚景观
小区入口铁艺大门施工dwg和CAD图纸
铁艺围墙大样
新铁艺栏杆
铁艺围栏纹饰六
铁艺围栏纹饰十二
铁艺门图纸块
铁艺围栏纹饰十三
铁艺围栏纹饰十一
铁艺围栏纹饰十
铁艺围栏纹饰九
铁艺围栏纹饰八
铁艺围栏纹饰七
全部评论
评论
网友评论仅友表达个人看法,并不表明本站同意其观点,不得发布违反法律法规的内容!
铁艺大门施工图下载排行
铁艺围栏纹饰一
铁艺围栏纹饰二
铁艺围栏纹饰三
铁艺围栏纹饰四
铁艺围栏纹饰五
铁艺大门,消防车道门,岗亭等节点大样详图纸
铁艺大门设计CAD详大样图——泛亚景观
铁艺大门设计CAD详大样图——泛亚景观
特色铁艺大门设计CAD详图纸——泛亚景观
特色铁艺大门设计CAD详大样图——泛亚景观
铁艺大门施工图下载推荐
造型铁艺大门施工dwg和CAD图纸(铺装图纸)
铁艺栅栏节点详图纸设计
铁艺栏杆施工样图纸
铁艺栏杆结构CAD详图纸
铁艺围墙设计CAD图纸
铁艺座凳施工大样
铁艺栏杆围墙5例
16种铁艺护栏设计
围墙铁艺栏杆方案CAD图纸
铁艺栏杆围墙设计CAD图纸
网站首页
|
信息产业部备案/许可证编号:苏ICP备2021052619号-1
苏公网安备:32041102001778号
本站所有内容均由网友自主分享,仅供学习和参考,如有侵权内容或者违法行为,请及时联系站长删除。