admin
|
退出
|
登录
|
注册
|
0
积分
|
赚取积分
|
VIP领取积分
|
帮助中心
|
首页
【知石网】是一个专业资料分享学习平台,本站提供大量施工技术文档和设计下载。
首页
施工图纸
施工方案
施工组织
施工交底
合同表格
建筑结构
节点详图
毕业设计
平面图纸
景观设计
电气知识
环保知识
您当前位置:
首页
»
节点详图
»
节点详图
»
楼梯结构节点构造详图纸
楼梯结构节点构造详图纸
资料简介
赚取积分
搜索更多资源
附件详情
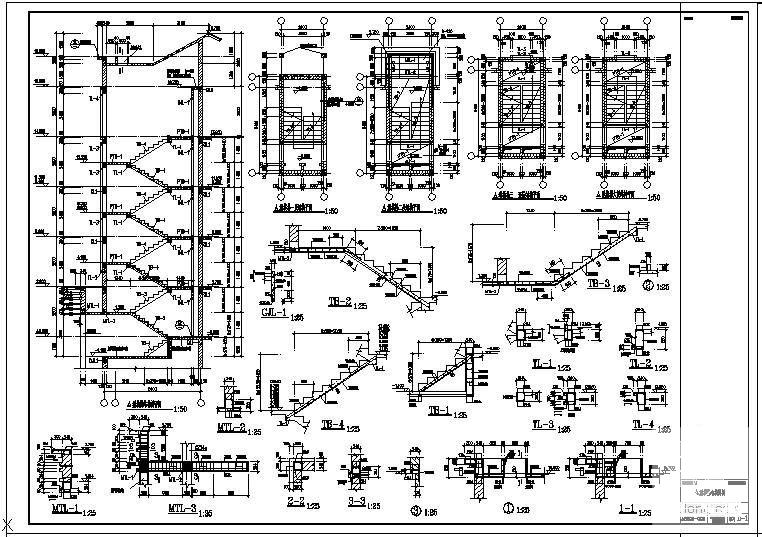
某楼梯结构节点构造详图(图集),该资料包含多种梯形楼梯详细图纸,图纸14张
以下是附件的其中一部分截图,共4张,您也可以
搜索
更多您想要的资源
楼梯结构节点图 - 1
楼梯结构节点图 - 2
楼梯结构节点图 - 3
楼梯结构节点图 - 4
以上是部分截图,请下载附件后查看完整高清内容
发布时间:2022-02-20
评论次数:0
浏览次数:0
文件大小:2.13 MB
收藏次数:0
文件名称:
附件-996056768809655658.rar
下载信息
加入收藏
赚取积分
立即下载
对不起,系统繁忙,请稍后再试,或联系管理员
对不起,您的积分余额不足,请
充值积分
恭喜购买成功!请
下载文件
楼梯结构节点图下载
钢结构加建楼梯节点详大样图
钢结构楼梯节点CAD详大样图
楼梯结构节点详图纸cad平面图
钢结构楼梯通用节点图纸
钢楼梯结构节点构造设计详图
板式楼梯结构节点构造详图纸
钢楼梯结构节点构造详图纸
楼梯结构节点详细设计CAD图纸
钢结构楼梯节点CAD详图纸
楼梯结构节点构造详图纸cad
23个钢梯节点详图纸钢爬梯,折楼梯,两跑楼梯图
钢楼梯节点构造详图纸大样图
钢楼梯大样节点构造详图纸立面图
楼梯节点详图纸cad平面图
楼梯节点详图纸cad布置图
山亭楼梯-梁式楼梯节点构造CAD详图纸
楼梯节点构造详图纸
楼梯节点详图纸cad
楼梯节点详图纸cad
楼梯节点详图纸cad
全部评论
评论
网友评论仅友表达个人看法,并不表明本站同意其观点,不得发布违反法律法规的内容!
楼梯结构节点图下载排行
楼梯节点详图纸cad
楼梯节点详图纸cad
楼梯节点详图纸cad
楼梯节点详图纸cad
楼梯节点详图纸cad
楼梯节点详图纸cad
楼梯节点详图纸cad
楼梯节点详图纸cad
楼梯节点详图纸cad
楼梯节点详图纸cad
楼梯结构节点图下载推荐
楼梯节点详图纸cad
楼梯节点详图纸cad
楼梯节点详图纸cad
楼梯节点详图纸cad
楼梯节点详图纸cad
楼梯节点详图纸cad
钢结构螺旋楼梯及直跑楼梯节点CAD详图纸
HPB235钢楼梯结构节点构造详图纸立面图
小区住宅新增复式钢楼梯结构CAD施工图纸(节点大样图)
9层结构楼梯节点构造详图(4页CAD大样图)
网站首页
|
信息产业部备案/许可证编号:苏ICP备2021052619号-1
苏公网安备:2041102001103号
本站所有内容均由网友自主分享,仅供学习和参考,如有侵权内容或者违法行为,请及时联系站长删除。