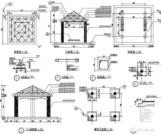
四角水景亭详图纸立面图及配筋图、柱基础图
- 发布时间:2021-12-25
- 评论次数:0
- 浏览次数:0
- 文件大小:0.1 MB
- 收藏次数:0
-
文件名称:
附件-996007808699967999.rar
四角水景亭图下载
- 四角水景亭详细设计CAD图纸(顶面图)
- 四角亭大样图纸剖面图
- 四角亭施工CAD详大样图
- 四角亭六角亭八角亭四角双亭连廊亭施工CAD大样图纸
- 四角景观亭详图纸平面图及立面图,顶面图
- 中式现代四角亭平面图及立面图,基础详图
- 四角亭节点构造详细设计CAD图纸
- 四角亭做法详细设计CAD图纸
- 古建四角亭施工设计CAD图纸详图
- 四角亭节点大样设计CAD图纸
- 四角木亭施工详细设计CAD图纸
- 四角木亭施工CAD详图纸
- 现代四角亭设计CAD详图纸
- 四角景观亭施工CAD详图纸
- 简易四角亭CAD施工图纸
- 四角木亭施工CAD详图纸
- 四角亭CAD施工图纸
- 仿古四角亭施工大样
- 四角木亭施工CAD详图纸
- 四角亭施工大样CAD图纸
全部评论
评论网友评论仅友表达个人看法,并不表明本站同意其观点,不得发布违反法律法规的内容!
