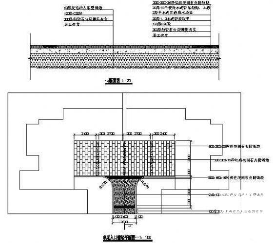
单元入口铺装图纸一平面和断面图
- 发布时间:2021-12-22
- 评论次数:0
- 浏览次数:0
- 文件大小:0.02 MB
- 收藏次数:0
-
文件名称:
附件-996007899056987699.rar
单元入口铺装图下载
- 单元入口铺装图纸四平面和断面图
- 单元入口铺装图纸三平面和断面图
- 单元入口铺装图纸二平面和断面图
- 入口铺装平面CAD图纸
- 小区入口特色铺装详细设计CAD图纸
- 小区入口特色铺装CAD详图纸
- 车库入口花架CAD施工大样图(柱位铺装大样图)
- 幼儿园入口广场铺装CAD详大样图
- 幼儿园入口广场铺装CAD详大样图
- 停车场铺装CAD平面,铺装大样
- 入口景观竣工施工图纸(入口广场铺装大样)(给排水CAD平面图)
- 五种住户入口铺装施工详细设计CAD图纸
- 宾馆景观园林工程全CAD图纸(入口广场铺装)
- 中庭景观设计CAD施工方案图纸(入口广场铺装)
- 别墅区入口区铺装总平面CAD施工图纸
- 车库入口四种铺装形式CAD施工图纸
- 园路铺装标准化设计-弧线标准原路铺装
- 园路铺装标准化设计-高端标准原路铺装
- 铺装节点CAD详施工大样图
- 入口广场铺装设计
全部评论
评论网友评论仅友表达个人看法,并不表明本站同意其观点,不得发布违反法律法规的内容!
