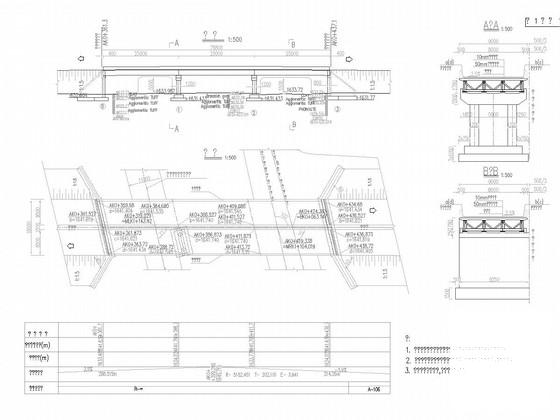
9m宽3x25m钢混叠合梁桥设计图纸平面布置图,构造图
- 发布时间:2021-12-20
- 评论次数:0
- 浏览次数:0
- 文件大小:5.64 MB
- 收藏次数:0
- 
								文件名称: 附件-995798856768759058.rar 附件-995798856768759058.rar
								钢混叠合梁桥设计图下载
							
						- 钢—混凝土叠合梁桥的设计和施工
- 9m宽3x25m钢混叠合梁桥设计CAD图纸,33张
- 三桥钢箱梁设计图纸.
- 3x60m连续钢桁梁钢桥CAD设计图纸.dwg
- 跨河立交桥钢混组合梁施工方案
- 钢箱混凝土梁桥设计施工图纸(全套)
- 钢箱混凝土梁桥设计CAD图纸(完整)
- 变截面箱梁桥设计图纸.dwg
- 钢混组合悬臂梁构造详图纸cad
- 某城市政工程人行桥钢箱梁设计图纸和桥面铺装构造图
- 城市钢箱梁组合钢板梁六车道高架立交桥图纸
- 48米T梁钢模设计图纸.dwg
- 装配式空心板剪力墙结构叠合连梁抗震性能
- 叠合梁公路桥加宽工程施工图纸(26张).
- 钢桥设计CAD图纸
- 跨城市环线单跨钢箱梁高速桥施工图纸2020cad
- 波形钢腹板工字组合梁桥设计与结构分析(钢筋混凝土)
- 钢箱梁桥工程施工图纸设计(57页).
- 30米钢筋砼桥预制箱梁模板设计图纸组装图
- 预应力混凝土连续箱梁桥设计图纸.dwg
全部评论
						
							评论网友评论仅友表达个人看法,并不表明本站同意其观点,不得发布违反法律法规的内容!
						
						
 
	              	 
	              	 
	              	 
	              	 
	              	