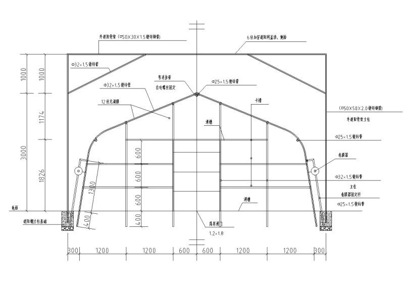
单层砌体结构轻钢结构大棚结构施工大样图平面图及立面图
- 发布时间:2022-02-20
- 评论次数:0
- 浏览次数:0
- 文件大小:13.88 MB
- 收藏次数:0
- 
								文件名称: 附件-996588858758959750.dwg 附件-996588858758959750.dwg
								轻钢结构大棚施工图下载
							
						- 焦炉大棚结构设计施工图纸(轻钢结构,地上1层)
- 高低跨轻钢蔬菜交易大棚结构CAD施工图纸
- 60X20米轻钢大棚结构设计方案CAD图纸
- 高低跨轻钢蔬菜交易大棚结构CAD施工图纸(独立基础)(平面布置图)
- 60X20米轻钢大棚结构设计图纸,共6张图纸
- 温室大棚钢结构部分CAD图纸
- 收费大棚结构设计施工图纸
- 大棚结构设计CAD施工图纸
- 焦炉大棚结构设计CAD施工图纸
- 温室大棚空调CAD施工图纸
- 冬暖式日光温室大棚工程建筑施工图纸_平面图_大棚剖面图_cad
- 公司周转大棚结构设计图纸
- 蔬菜果品市场钢结构大棚CAD图纸
- 大棚建筑结构CAD施工大样图
- 农业基地温室大棚建筑施工图纸
- 玻璃智能连栋温室大棚施工图纸
- 生态园大棚水暖设计CAD施工图纸
- 单层钢结构大棚结构设计施工图纸
- 蔬菜果品市场钢结构大棚结构设计施工图纸
- 单层钢管桁架结构蔬菜批发市场大棚结构CAD施工图纸
全部评论
						
							评论网友评论仅友表达个人看法,并不表明本站同意其观点,不得发布违反法律法规的内容!
						
						
 
	              	 
	              	 
	              	 
	              	 
	              	