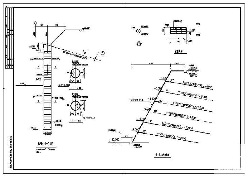
宾馆10余米深基坑支护图纸平面布置图
- 发布时间:2021-12-15
- 评论次数:0
- 浏览次数:0
- 文件大小:0.24 MB
- 收藏次数:0
-
文件名称:
附件-995850580777575089957.rar
相关下载
- 宾馆10余米深基坑支护图纸
- 10米深基坑土钉墙及桩锚支护CAD施工图纸
- 10米深基坑逆作法排桩加内支撑支护工况CAD图纸
- 10米深基坑逆作法排桩加内支撑支护CAD施工图纸
- 10米深基坑土钉墙加桩锚支护CAD施工图纸
- 10米深基坑土钉墙支护CAD施工图纸(附设计计算书)
- 10米深基坑排桩加两道支撑支护CAD施工图纸
- 10米深基坑排桩加锚索支护CAD施工大样图
- 10米深基坑排桩加钢管支撑支护CAD施工大样图
- 深基坑支护工程
- 基坑支护节点构造CAD详图(10页图纸)(施工平面布置图)
- 10米深基坑重力挡墙结合复合土钉墙支护施工CAD图纸(设计方案计算模型)
- 10米深基坑排桩加两道内支撑支护CAD施工图纸
- 10米深基坑单排桩加两道钢筋混凝土支撑支护CAD施工图纸
- 10米深基坑人工挖孔桩复合土钉墙支护CAD施工图纸
- 10米深基坑排桩加一道圆形内支撑支护施工CAD图纸(双圆环支撑)
- 深基坑支护CAD图纸
- 10米深基坑复合土钉墙支护CAD施工大样图(附计算书)
- 10米深基坑深层搅拌桩加土钉墙支护CAD施工大样图
- 10米深基坑灌注桩加双环梁内支撑支护CAD施工大样图
全部评论
评论网友评论仅友表达个人看法,并不表明本站同意其观点,不得发布违反法律法规的内容!
