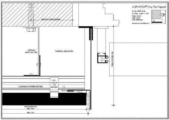
陶土板幕墙节点
- 发布时间:2021-12-12
- 评论次数:0
- 浏览次数:0
- 文件大小:0.66 MB
- 收藏次数:0
- 
								文件名称: 附件-995797869799705506.rar 附件-995797869799705506.rar
								陶土板幕墙节点下载
							
						- 陶土板幕墙节点构造详细设计CAD图纸
- 陶土板幕墙CAD节点图纸(17页图纸)
- 陶土板幕墙节点构造CAD详图(15页图纸)
- 陶土板幕墙系统标准图纸CAD图纸
- 有横梁陶土板幕墙施工工法(装饰材料)
- 有横梁陶土板幕墙施工工艺(新型建筑)
- 陶土板幕墙施工工法(构件式幕墙)(测量放线)
- 外墙陶土板幕墙与铝扣板结合防渗漏施工工法(安装方法)
- 开缝式室内外陶土板幕墙施工工法(办公楼大厅)
- 框架结构综合服务楼陶土板幕墙施工方案(附图纸)
- 医院病房综合楼幕墙工程施工方案(玻璃铝板陶土板)(框架剪力墙结构)
- 丙类高层陶土板外墙标准生产厂房建筑施工CAD图纸.dwg
- CAD树脂板造型节点(玻璃幕墙)
- 幕墙挂板节点构造CAD详图纸
- 陶板幕墙安装节点CAD详图纸
- 瓷板背栓幕墙节点构造详细设计CAD图纸
- 99张单元幕墙节点详细设计CAD图纸(轻钢龙骨石膏板)
- U型玻璃幕墙CAD节点图纸(经典)(轻钢龙骨石膏板)
- 瓷板背栓幕墙节点构造详细设计CAD图纸
- 玻璃幕墙标准横剖节点图纸(轻钢龙骨石膏板)
全部评论
						
							评论网友评论仅友表达个人看法,并不表明本站同意其观点,不得发布违反法律法规的内容!
						
						
 
	              	 
	              	 
	              	