admin
|
退出
|
登录
|
注册
|
0
积分
|
赚取积分
|
VIP领取积分
|
帮助中心
|
首页
【知石网】是一个专业资料分享学习平台,本站提供大量施工技术文档和设计下载。
首页
施工图纸
施工方案
施工组织
施工交底
合同表格
建筑结构
节点详图
毕业设计
平面图纸
景观设计
电气知识
环保知识
您当前位置:
首页
»
节点详图
»
节点详图
»
铁艺门灯柱节点详图纸设计
铁艺门灯柱节点详图纸设计
资料简介
赚取积分
搜索更多资源
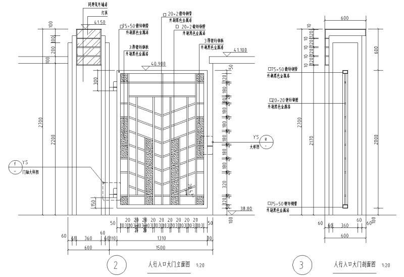
附件详情:铁艺门灯柱节点详图设计
铁艺门灯柱节点详图设计 (1).png
铁艺门灯柱节点详图设计 (2).png
铁艺门灯柱节点详图设计 (3).png
铁艺门灯柱节点详图设计 (4).png
以下是附件的其中一部分截图,共4张,您也可以
搜索
更多您想要的资源
第 1 张图
第 2 张图
第 3 张图
第 4 张图
以上是部分截图,请下载附件后查看完整高清内容
发布时间:2021-12-12
评论次数:0
浏览次数:0
文件大小:1 MB
收藏次数:0
文件名称:
附件-996509987078098795.dwg
下载信息
加入收藏
赚取积分
立即下载
对不起,系统繁忙,请稍后再试,或联系管理员
对不起,您的积分余额不足,请
充值积分
恭喜购买成功!请
下载文件
如果无法下载,请使用谷歌浏览器,360浏览器,Edge浏览器进行下载。
相关下载
长丰铁艺矮灯柱详图纸设计cad
铁艺门图纸块
住宅小区铁艺门节点详图纸设计
深灰色铁艺矮灯柱详图纸cad
铁艺栅栏节点详图纸设计
学校入口景墙、铁艺门节点详图纸设计cad平面图
18套铁艺护栏及欧式栏杆节点CAD详大样图
铁艺围墙大样
铁艺造型大门
新铁艺栏杆
铁艺大门设计CAD详大样图——泛亚景观
铁艺大门设计CAD详大样图——泛亚景观
特色铁艺大门设计CAD详大样图——泛亚景观
铁艺围墙设计CAD图纸
铁艺栏杆围墙设计CAD图纸
铁艺围墙设计CAD图纸
铁艺栏杆围墙设计CAD图纸
铁艺围栏纹饰六
铁艺围栏纹饰十二
铁艺围栏纹饰十三
全部评论
评论
网友评论仅友表达个人看法,并不表明本站同意其观点,不得发布违反法律法规的内容!
下载排行
铁艺围栏纹饰十一
铁艺围栏纹饰十
铁艺围栏纹饰九
铁艺围栏纹饰八
铁艺围栏纹饰七
铁艺围栏纹饰一
铁艺围栏纹饰二
铁艺围栏纹饰三
铁艺围栏纹饰四
铁艺围栏纹饰五
下载推荐
16种铁艺护栏设计
入口水景LOGO景墙、岗亭铁艺门详图纸设计
景观铁艺门施工做法详细设计CAD图纸(平面图)
20个铁艺及配饰大样图——建筑CAD详大样图
铁艺大门施工详图纸
铁艺栏杆施工样图纸
铁艺栏杆结构CAD详图纸
围墙铁艺栏杆方案CAD图纸
铁艺大门施工CAD图纸
经典铁艺围墙施工CAD图纸
网站首页
|
信息产业部备案/许可证编号:苏ICP备2021052619号-1
苏公网安备:32041102001778号
本站所有内容均由网友自主分享,仅供学习和参考,如有侵权内容或者违法行为,请及时联系站长删除。