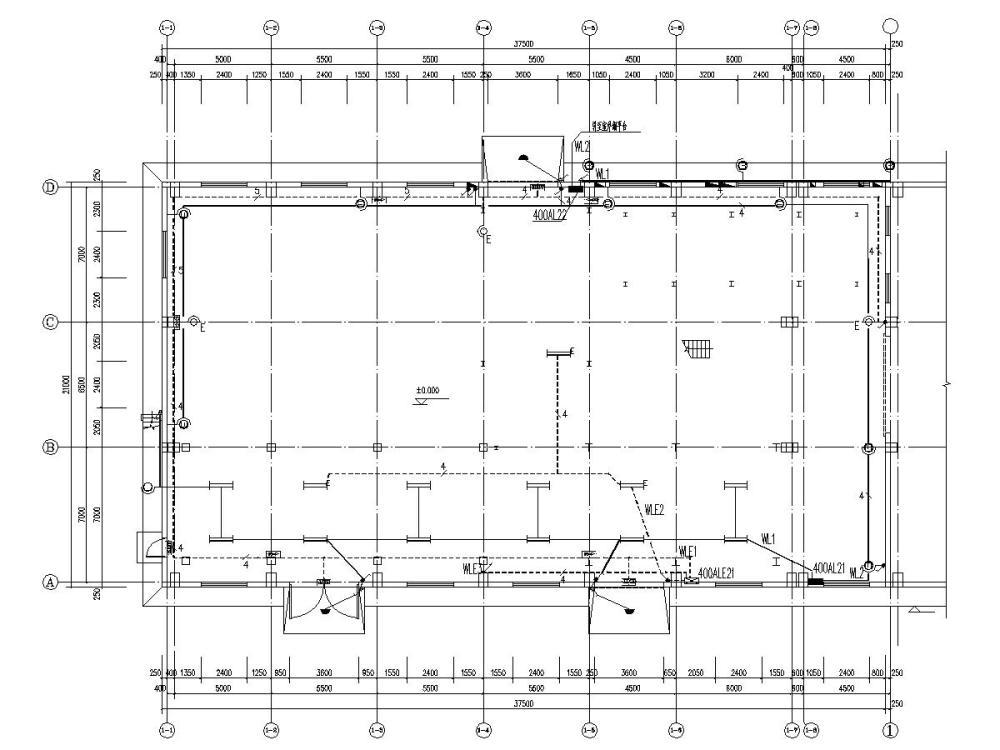
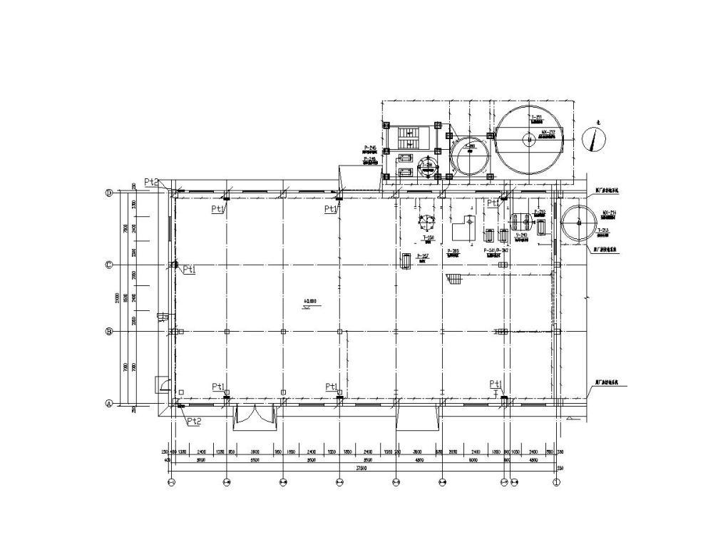
水处理与结晶工程建筑电气施工图纸[含自控]
- 发布时间:2021-12-11
- 评论次数:0
- 浏览次数:0
- 文件大小:8.9 MB
- 收藏次数:0
- 
								文件名称: 附件-996099566008757907.zip 附件-996099566008757907.zip
								建筑电气施工图纸下载
							
						- 污水处理厂电气施工图纸(2016含自控)
- 自控仪表安装工程电气方案
- 碱厂结晶器框架模板工程施工方案(建筑面积)
- 污水处理改造工程自控部分CAD施工图纸
- 污水处理改造工程自控部分施工图纸,共37张.dwg
- 3层丙类厂房电气CAD施工图纸(2020-含自控系统)
- 污水处理厂自控系统工程施工方案
- 污水处理站电气施工图纸(自控系统)
- 三级负荷污水处理站电气CAD施工图纸(自控系统)
- 电气工程自控设备安装大样CAD图纸
- 污水处理厂自控总CAD图纸
- 工程空调自控CAD施工图纸
- 污水处理厂电气初设图纸,含电气设计说明
- 汽车加气站工程电气施工图纸(自控系统)
- 工程空调自控设计CAD施工图纸
- 污水处理厂分控站PLC自控施工图纸
- 污水处理厂自控安装施工图纸
- 深度水处理施工图纸工艺工艺自控流程图.dwg
- 污水处理厂中控室自控CAD施工图纸.dwg
- 污水处理配电房施工方案图纸含建筑图纸
全部评论
						
							评论网友评论仅友表达个人看法,并不表明本站同意其观点,不得发布违反法律法规的内容!
						
						
 
	              	 
	              	 
	              	 
	              	 
	              	