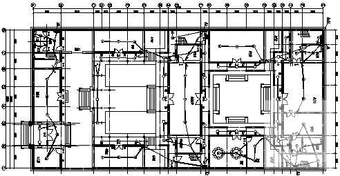
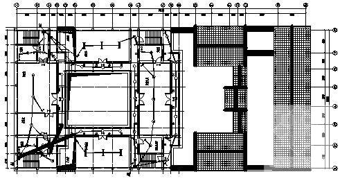
四合院电气施工图纸(电气设计说明)
- 发布时间:2021-11-24
- 评论次数:0
- 浏览次数:0
- 文件大小:0.37 MB
- 收藏次数:0
-
文件名称:
附件-995856660588758675685.rar
电气图纸设计说明下载
- 四合院电气CAD施工图纸
- 四合院住宅工程电气施工图纸系统图
- 厂房电气竣工图纸,含电气设计说明
- 两层四合院电气设计施工图纸,共10张图.dwg
- 国内四合院给排水图纸设计说明
- 四合院给排水图纸设计说明.dwg
- 电气设计说明汇总
- 5层宾馆电气施工图纸(电气设计说明)
- 工业厂房电气施工图纸(电气设计说明)
- 居民安置点景观电气CAD施工图纸(电气设计说明)
- 4层住宅楼电气CAD施工图纸(电气设计说明)
- 上6层住宅楼电气CAD施工图纸(电气设计说明)
- 上3层综合楼电气CAD施工图纸(电气设计说明)
- 上4层展馆电气CAD施工图纸(电气设计说明)
- 公司研发改造中心电气CAD施工图纸(电气设计说明)
- 地上3层高档别墅电气CAD施工图纸(电气设计说明)
- 地上1层专卖店电气CAD施工图纸(电气设计说明)
- 两层健身中心电气CAD施工图纸(电气设计说明)
- 7层商业广场电气CAD施工图纸(电气设计说明)
- 生产临建仓库电气CAD施工图纸(电气设计说明)
全部评论
评论网友评论仅友表达个人看法,并不表明本站同意其观点,不得发布违反法律法规的内容!
