5层宾馆电气施工图纸(电气设计说明)

  • 建筑类别:宾馆
  • 建筑高度类型:多层建筑
  • 建筑地上层数:5层
  • 图纸设计深度:施工图
  • 参考图纸:29张
  • 接地方式:TN-S
  • 强电设计:低压配电,电气照明,接地安全
  • 弱电设计:视频监控系统,综合布线系统,通信系统,有线电视和卫星接收系统,广播系统

附件详情

  • 一、电气设计说明
  • 二、 竖向配电干线 系统图
  • 三、 配电箱系统
  • 四、背景音乐系统图
  • 五、综合布线系统图
  • 六、电视电话系统图
  • 七、闭路电视监控系统图
  • 八、消防自动报警系统图
  • 九、照明电气平面图
  • 十、 弱电平面图
  • 十一、消防报警平面图

附件详情

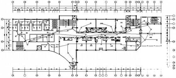
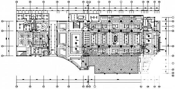
本稿件是某五层宾馆电气施工图纸,安装负荷为:924.85KW 需要系数为0.85 计算负荷为786.12KW,其中消防应急负荷为149.4KW,电气设计包含配电系统设计、背景音乐系统设计、综合布线系统设计、电视电话系统设计、闭路电视监控系统设计、消防自动报警系统设计、照明灯具布置、插座动力系统设计等。

以下是附件的其中一部分截图,共4张,您也可以 搜索 更多您想要的资源
  • 电气图纸设计说明 - 1
    电气图纸设计说明 - 1
  • 电气图纸设计说明 - 2
    电气图纸设计说明 - 2
  • 电气图纸设计说明 - 3
    电气图纸设计说明 - 3
  • 电气图纸设计说明 - 4
    电气图纸设计说明 - 4
以上是部分截图,请下载附件后查看完整高清内容
网站首页  | 
本站所有内容均由网友自主分享,仅供学习和参考,如有侵权内容或者违法行为,请及时联系站长删除。