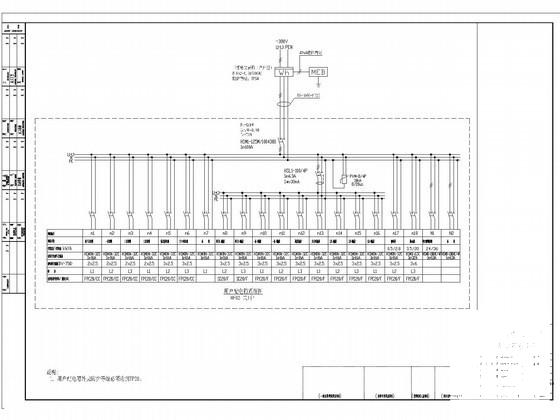
3层附地下室独立别墅电气施工图纸
- 发布时间:2021-12-11
- 评论次数:0
- 浏览次数:0
- 文件大小:0.77 MB
- 收藏次数:0
- 
								文件名称: 附件-995857957697067880976.rar 附件-995857957697067880976.rar
								别墅电气施工图纸下载
							
						- 630平米3层附地下室独立别墅电气施工图纸
- 3层附地下室独立别墅电气CAD施工图纸
- 3层附地下室独立别墅电气CAD施工图纸
- 3层附地下室独立别墅电气CAD施工图纸(三级负荷)
- 附院大型地下室电气施工图纸
- 独立别墅电气CAD施工图纸
- 上1层独立别墅电气CAD施工图纸
- 度假村独立别墅电气设计
- 独立别墅建筑CAD施工图纸
- 别墅独立基础CAD施工图纸
- 独立别墅CAD施工方案图纸
- 独立别墅全套CAD施工图纸
- 3层独立基础异形柱结构别墅结构CAD施工图纸(地下室底板)
- 基地3套别墅地下室结构设计CAD图纸(独立基础)(梁平法施工图)
- 商业办公楼工程地下室施工方案(附施工平面图纸)
- 附建式地下室框剪结构CAD施工图纸(建筑)
- 附建式防空地下室通风施工图纸,共5张.dwg
- 带附楼门式刚架厂房结构CAD施工图纸(独立基础)
- 3层独立别墅电气施工图纸(设计说明)
- 3层独立式别墅电气CAD施工图纸
全部评论
						
							评论网友评论仅友表达个人看法,并不表明本站同意其观点,不得发布违反法律法规的内容!
						
						
 
	              	 
	              	 
	              	