7层住宅楼电气施工图纸(阁楼)
- 发布时间:2021-12-11
- 评论次数:0
- 浏览次数:0
- 文件大小:1.46 MB
- 收藏次数:0
- 
								文件名称: 附件-995856557977577679789.rar 附件-995856557977577679789.rar
								住宅电气施工图纸下载
							
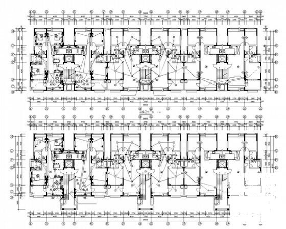
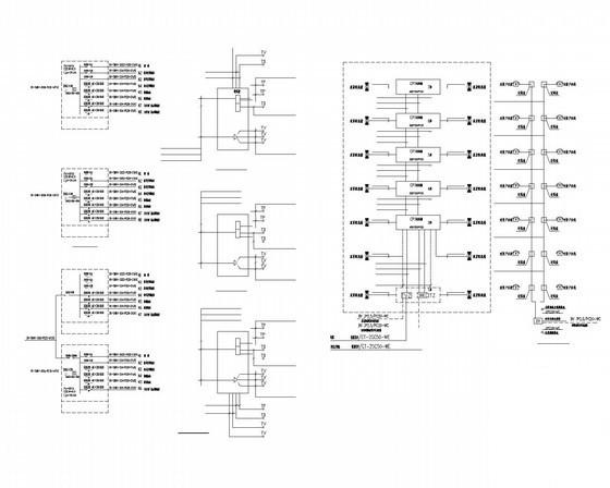
						- 7层含阁楼住宅楼电气CAD施工图纸(三级负荷)
- 阁楼电气平面布置CAD图纸
- 上6层住宅楼带阁楼电气CAD施工图纸(三级负荷)
- 5层框架结构住宅楼结构施工图纸(阁楼)
- 11层住宅楼(带阁楼)建筑施工CAD图纸
- 5层住宅楼建筑CAD施工图纸(加阁楼)
- 5层带阁楼砖混住宅楼结构CAD施工图纸
- 6层带阁楼砖混结构住宅楼结构CAD施工图纸
- 6层框架结构住宅楼结构CAD施工图纸(坡屋面阁楼)
- 4层砌体结构住宅楼结构CAD施工图纸(带阁楼)
- 13层带阁楼车库住宅楼图纸(梁平法施工图)
- 5层砌体结构住宅楼结构CAD施工图纸(阁楼结构坡屋面)
- 6层带阁楼住宅楼结构CAD施工图纸()
- 6层砖混结构住宅楼结构CAD施工方案图纸(带阁楼)
- 6层带阁楼住宅楼框架结构CAD施工图纸()
- 5层带阁楼住宅楼水暖CAD施工图纸
- 6层框架结构住宅楼结构CAD施工图纸(坡屋面阁楼)
- 5层砌体结构住宅楼结构CAD施工图纸(阁楼结构坡屋面)
- 两层带阁楼别墅电气施工图纸(三级负荷)
- 两层带阁楼别墅电气CAD施工图纸()
全部评论
						
							评论网友评论仅友表达个人看法,并不表明本站同意其观点,不得发布违反法律法规的内容!
						
						
 
	              	 
	              	 
	              	