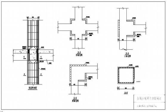
柱钢丝绳网片抗弯加固节点构造详图纸cad
- 发布时间:2024-01-02
- 评论次数:0
- 浏览次数:0
- 文件大小:0.02 MB
- 收藏次数:0
-
文件名称:
附件-996058896859788897.rar
相关下载
- 柱钢丝绳网片抗弯、抗剪加固节点构造详图纸cad
- 柱钢丝绳网片抗剪加固节点构造详图纸cad
- 柱钢丝绳网片加固说明及钢丝绳网片与柱基础连接节点cad
- 墙钢丝绳网片加固说明及加固立面节点构造详图纸cad
- 悬挑梁钢丝绳网片负弯矩加固节点构造详图纸cad
- 墙钢丝绳网片T形节点加固构造详图纸cad
- 板钢丝绳网片加固说明及板双面加固节点图纸cad
- 墙钢丝绳网片加固穿实心楼板单、双面加固节点构造详图纸cad
- 钢丝绳网片-聚合物砂浆加固节点CAD详图纸(dwg)
- 梁钢丝绳网片次梁正、负弯矩加固CAD节点图纸
- 梁钢丝绳网片主梁正、负弯矩加固CAD节点图纸
- 梁钢丝绳网片主梁正弯矩加固节点图纸cad
- 梁钢丝绳网片次梁正弯矩加固节点图纸cad
- 梁钢丝绳网片连续次梁负弯矩加固节点图纸cad
- 梁钢丝绳网片主梁全面加固节点图纸cad
- 梁钢丝绳网片次梁全面加固节点图纸cad
- 悬挑梁钢丝绳网片负弯矩加固节点构造详细设计CAD图纸
- 墙钢丝绳网片加固连接柱节点、墙端部节点、顶端节点构造详图纸cad
- 钢丝绳网片-聚合物砂浆加固说明
- 墙钢丝绳网片加固双面加固穿框架梁、单面加固穿框架梁节点构造CAD详图纸
全部评论
评论网友评论仅友表达个人看法,并不表明本站同意其观点,不得发布违反法律法规的内容!
