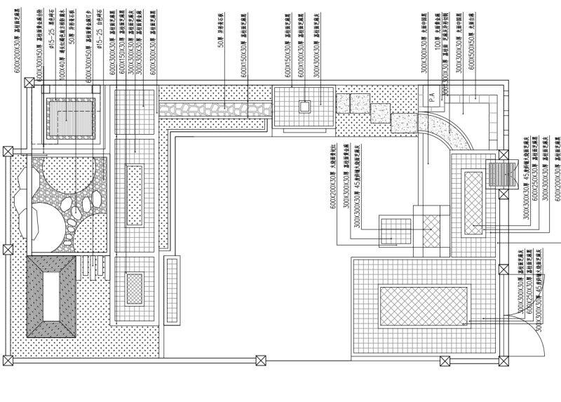
现代法欧中式古典别墅庭院景观施工图全套cad
- 发布时间:2024-01-02
- 评论次数:0
- 浏览次数:0
- 文件大小:391.9 MB
- 收藏次数:0
-
文件名称:
附件-pan96869678868898975.zip
相关下载
- 中式古典庭院景观设计施工图纸
- 简约优雅新中式别墅庭院景观方案
- 简约中式私家豪宅中式庭院景观设计全套CAD施工图纸.dwg
- 中式现代景观亭
- 特色全套别墅庭院景观CAD施工图纸.dwg
- 中式庭院景观规划设计施工图纸
- 特色别墅庭院景观施工全套图纸.dwg
- 中式古典连亭
- 简欧古典铁艺围栏大样CAD图纸
- 现代风格庭院景观设计全套施工图纸
- 中式风格庭院景观设计模型(su模型)
- 中式别墅CAD施工方案图纸(景观庭院,室内布局,别墅立面,别墅su模型).dwg
- 庭院景观施工CAD图全套图纸
- 别墅庭院景观照明CAD图纸
- 山体别墅庭院景观su模型设计
- 别墅庭院景观平面图纸.dwg
- 别墅庭院施工CAD图纸全套
- 庭院景观CAD施工图纸全套.dwg
- 庭院景观设计全套CAD施工图纸.dwg
- 私家别墅庭院景观工程施工图纸
全部评论
评论网友评论仅友表达个人看法,并不表明本站同意其观点,不得发布违反法律法规的内容!
