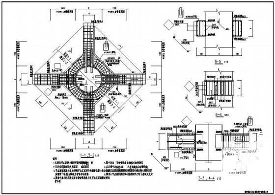
钢管混凝土柱C型梁柱构造详图纸cad
- 发布时间:2024-01-02
- 评论次数:0
- 浏览次数:0
- 文件大小:0.08 MB
- 收藏次数:0
-
文件名称:
附件-996057095079770960.rar
相关下载
- 钢管混凝土柱C型梁柱节点配筋和钢结构大样节点构造CAD详施工图纸
- 钢管混凝土柱C型梁柱节点构造CAD详图纸配筋大样
- 钢管混凝土柱C型梁柱牛腿大样节点构造CAD详图纸
- 钢管混凝土柱B型梁柱构造详图纸cad
- 院钢管混凝土柱C型梁柱节点牛腿大样CAD图纸
- 钢管混凝土柱C型梁柱节点牛腿大样CAD图纸
- 院钢管混凝土柱C型梁柱节点配筋大样
- 钢管混凝土柱A,B型梁柱节点配筋大样节点构造CAD详施工图纸
- 钢管混凝土柱A,B型梁柱节点钢结构大样节点构造CAD详施工图纸.dwg
- 钢管混凝土柱A型梁柱节点配筋大样节点构造设计详图
- 钢管混凝土柱B型梁柱节点配筋大样节点构造详图
- 钢管混凝土柱钢梁大样节点构造CAD详施工图纸
- 钢管混凝土柱定位器大样节点构造CAD详施工图纸
- 方钢管混凝土柱配筋大样节点构造CAD详施工图纸
- 方钢管混凝土柱钢结构大样节点构造CAD详施工图纸.dwg
- 带约束拉杆方钢管混凝土柱大样及柱表节点构造CAD详施工图纸
- 钢管混凝土柱A,B型节点钢结构大样节点构造详图纸(一)
- 钢管混凝土柱A,B型节点钢结构构造详图纸cad
- 钢管混凝土柱A,B型节点钢结构大样节点构造设计详图
- 钢管梁柱节点构造CAD详图纸
全部评论
评论网友评论仅友表达个人看法,并不表明本站同意其观点,不得发布违反法律法规的内容!
