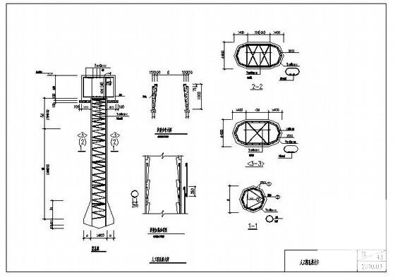
人工挖孔桩大样及设计说明cad

附件详情

某人工挖孔桩大样及设计说明 共两张图纸。

以下是附件的其中一部分截图,共1张,您也可以 搜索 更多您想要的资源
  • 人工挖孔桩大样及设计说明cad - 1
    第 1 张图
以上是部分截图,请下载附件后查看完整高清内容
网站首页  | 
本站所有内容均由网友自主分享,仅供学习和参考,如有侵权内容或者违法行为,请及时联系站长删除。