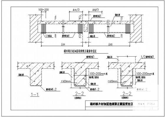
碳纤维片材加固连续梁正截面受拉区节点构造详图纸cad
- 发布时间:2024-01-02
- 评论次数:0
- 浏览次数:0
- 文件大小:0.03 MB
- 收藏次数:0
-
文件名称:
附件-996057097905088770.rar
相关下载
- 碳纤维片材加固简支梁正截面受拉区节点构造详图纸cad
- 粘钢加固连续梁正截面受拉区节点构造详图纸cad
- 粘钢加固简支梁正截面受拉区节点构造详图纸cad
- 加筋加固简支梁正截面受拉区节点构造详图纸cad
- 碳纤维片材加固连续单向/双向板开洞节点构造详图纸cad
- 碳纤维片材加固楼板说明
- 加筋加固连续梁负弯距区正截面节点构造详图纸cad
- 碳纤维片材加固连续单向/双向板开洞剖面图纸节点构造详图纸cad
- 碳纤维片材加固现浇楼板板面节点构造详图纸cad
- 加筋加固连续梁负弯距区正截面详图纸节点构造详图纸cad
- 碳纤维片材加固预制楼板平面图纸点构造CAD详图纸
- 碳纤维片材加固现浇楼板板底平面图纸节点构造CAD详图纸
- 碳纤维片材加固简支单向/双向板开洞剖面节点构造详图纸cad
- 梁的内折角处于受拉区的配筋配置节点构造详图纸
- 碳纤维片材加固混凝土结构施工应用分析.pdf
- 梁钢丝绳网片次梁正、负弯矩加固CAD节点图纸
- 梁钢丝绳网片主梁正、负弯矩加固CAD节点图纸
- 梁钢丝绳网片主梁正弯矩加固节点图纸cad
- 梁钢丝绳网片次梁正弯矩加固节点图纸cad
- 加筋法加固梁正截面说明cad
全部评论
评论网友评论仅友表达个人看法,并不表明本站同意其观点,不得发布违反法律法规的内容!
