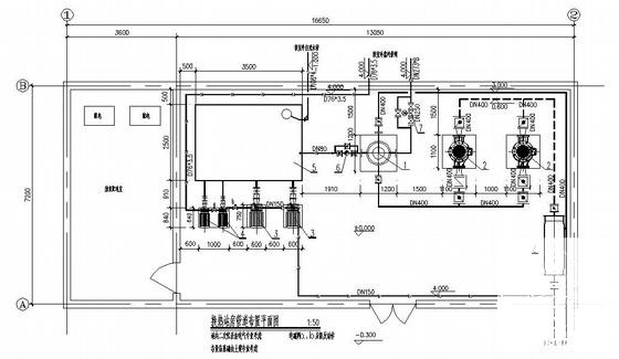
武安市村供热工程施工图纸
- 发布时间:2021-12-11
- 评论次数:0
- 浏览次数:0
- 文件大小:0.84 MB
- 收藏次数:0
-
文件名称:
附件-996095977585055905.rar
工程施工图纸下载
- 村供热工程采暖设计CAD施工图纸.dwg
- 建投沙河电厂室外供热管网工程施工方案
- 国内社区供热厂工程施工组织设计(混凝土砌块)
- 村道旧路改造工程施工图纸设计平面图
- 村道改建工程施工图纸设计52页.
- 村宗祠结构CAD图纸
- 小区供热换热站工程图纸
- 供热系统入口大样CAD图纸
- 小区供热外线设计CAD图纸
- 小区供热外线设计CAD图纸
- 锅炉房采暖供热CAD图纸
- 供热分户计量通用图纸.
- 2014年村级公路网化工程施工图纸53张(交通设施).
- 6层住宅集中供热系统
- 基于产业发展的村庄整治——以白果村和红砂村为例
- 2000平米商住楼散热器供热和温地盘管辐射供热采暖设计cad图纸
- 集中供热采暖生活热水系统设计图纸,供热采暖系统图和布置图
- 度假村路灯安装图纸
- 村供水工程竣工图纸
- 村宗祠结构图纸.dwg
全部评论
评论网友评论仅友表达个人看法,并不表明本站同意其观点,不得发布违反法律法规的内容!
