admin
|
退出
|
登录
|
注册
|
0
积分
|
赚取积分
|
VIP领取积分
|
帮助中心
|
首页
【知石网】是一个专业资料分享学习平台,本站提供大量施工技术文档和设计下载。
首页
施工图纸
施工方案
施工组织
施工交底
合同表格
建筑结构
节点详图
毕业设计
平面图纸
景观设计
电气知识
环保知识
您当前位置:
首页
»
其他文档
»
其他资料
»
2层综合楼空调施工图纸
2层综合楼空调施工图纸
资料简介
赚取积分
搜索更多资源
设计详细说明:无
建筑类别:商业
建筑高度类型:多层建筑
建筑地上层数:2层
图纸设计深度:施工图
参考图纸:8张
设计内容:空调
项目所在地:海南
附件详情
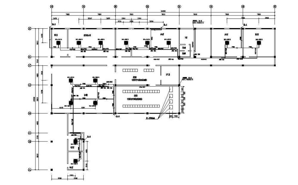
图纸为某综合楼空调图,共两层,包含空调平面图,控制布线平面图。
以下是附件的其中一部分截图,共2张,您也可以
搜索
更多您想要的资源
综合楼施工图 - 1
综合楼施工图 - 2
以上是部分截图,请下载附件后查看完整高清内容
发布时间:2021-12-11
评论次数:0
浏览次数:0
文件大小:0.2 MB
收藏次数:0
文件名称:
附件-996095977869975767.rar
下载信息
加入收藏
赚取积分
立即下载
对不起,系统繁忙,请稍后再试,或联系管理员
对不起,您的积分余额不足,请
充值积分
恭喜购买成功!请
下载文件
综合楼施工图下载
26层综合楼空调图纸
综合楼空调设计CAD图纸
医院综合楼通风空调施工图纸
19层综合楼空调通风施工图纸
5层综合楼空调通风施工图纸
2层大学综合楼空调施工图纸
24层综合楼通风空调施工图纸
7层综合楼空调施工图纸
大厦综合楼空调系统施工图纸
4层综合楼空调施工CAD图纸
学院综合楼空调施工CAD图纸
综合楼空调CAD施工图纸
综合楼空调机房CAD施工图纸
综合楼空调设计CAD施工图纸
通信综合楼空调设计CAD施工图纸
综合楼空调系统设计施工图纸.dwg
医疗综合楼空调设计施工图纸.dwg
15层医院综合楼空调图纸
5层医院综合楼空调通风图纸
制品厂综合楼空调通风图纸
全部评论
评论
网友评论仅友表达个人看法,并不表明本站同意其观点,不得发布违反法律法规的内容!
综合楼施工图下载排行
18层综合楼空调通风图纸
综合楼中央空调工程图纸
综合楼空调工程系统CAD图纸
综合楼空调系统设计CAD图纸
15层医院综合楼空调CAD图纸
监控中心综合楼空调设计CAD图纸
综合楼中央空调平面图纸
后勤综合楼空调通风CAD图纸
大学2层综合楼空调平面CAD图纸
上4层综合楼通风空调图纸.dwg
综合楼施工图下载推荐
3层车间综合楼空调采暖图纸.dwg
市综合楼空调设计图纸.dwg
4层综合楼空调通风CAD图纸
综合楼空调通风平面cad图纸_数码涡旋中央空调
综合楼空调设计CAD平面图
5层中学综合楼空调通风系统
5层中学综合楼空调采暖系统
招待所综合楼空调系统
综合楼空调设计CAD大样图(空调水系统图).dwg
行政办公综合楼空调系统设计CAD施工图纸(水环水源热泵空调系统)
网站首页
|
信息产业部备案/许可证编号:苏ICP备2021052619号-1
苏公网安备:32041102001778号
本站所有内容均由网友自主分享,仅供学习和参考,如有侵权内容或者违法行为,请及时联系站长删除。