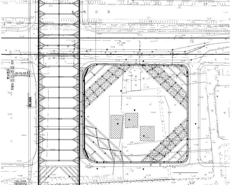
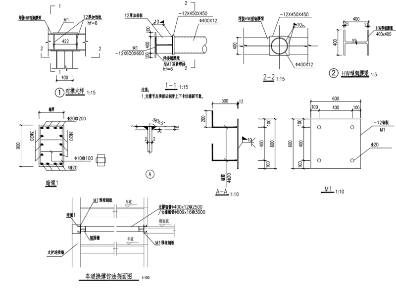
大型国际文化中心基坑支护大样图cad图_计算书
- 发布时间:2024-01-02
- 评论次数:0
- 浏览次数:0
- 文件大小:322.08 MB
- 收藏次数:0
- 
								文件名称: 附件-pan96869675558685797.zip 附件-pan96869675558685797.zip
								相关下载
							
						- 土钉墙基坑支护CAD施工大样图(附基坑支护计算书)
- 深基坑钢管桩加锚杆支护CAD施工大样图(计算书)
- 土钉墙基坑支护CAD施工大样图(计算书)
- 深基坑双排桩支护CAD施工大样图(计算书).dwg
- 12米深基坑排桩及桩锚支护CAD施工大样图(附支护计算书)
- 住宅项目高压旋喷咬合桩自进式锚杆基坑支护施工CAD大样图(基坑支护计算书)
- 钢管桩锚索基坑支护方案设计CAD图纸(支护计算书)
- 7米深基坑土钉墙支护CAD施工图纸(附基坑计算书)
- 排桩加混凝土内支撑深基坑支护CAD施工大样图(计算书)
- 钢板桩支撑窨井深基坑支护CAD施工大样图(附计算书通过专家论证)
- 排桩加土层锚杆深基坑支护CAD施工大样图及计算书
- 排桩加一道混凝土内支撑基坑支护CAD施工大样图(附计算书)
- 基坑抗滑桩及桩间板支护CAD施工大样图(附设计计算书)
- 深基坑放坡开挖及挂网喷射混凝土支护CAD施工大样图(计算书)
- 深基坑排桩加预应力锚索支护CAD施工大样图及计算书
- 12米深基坑排桩加锚索支护CAD施工大样图及计算书
- 16米深基坑桩锚加土钉墙支护CAD施工大样图(设计计算书)
- 厚淤泥地区搅拌桩复合土钉墙基坑支护CAD施工大样图(计算书)
- 15米深基坑喷锚加桩锚支护CAD施工大样图(附计算书)
- 深基坑放坡土钉墙支护CAD施工大样图及计算书
全部评论
						
							评论网友评论仅友表达个人看法,并不表明本站同意其观点,不得发布违反法律法规的内容!
						
						
 
	              	 
	              	 
	              	 
	              	 
	              	