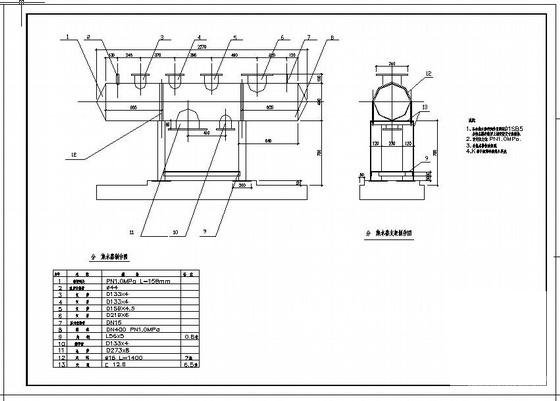
大型热力站平面施工图纸
- 发布时间:2021-12-11
- 评论次数:0
- 浏览次数:0
- 文件大小:0.2 MB
- 收藏次数:0
-
文件名称:
附件-995797795709967889.rar
平面施工图纸下载
- 大型热力站CAD平面图(10页图纸)
- 小区热力站管道平面CAD图纸
- 空压站热力施工CAD图纸
- 热力站建施设计CAD图纸
- 热力站系统流程CAD图纸
- 卢龙热力站工艺设计CAD图纸
- 热力站采暖设计全套图纸.dwg
- 国内369765平米广场热力站施工图纸
- 热力站工程暖通动力设计CAD施工图纸
- 小区3#热力站施工CAD图纸
- 热力站施工CAD图纸,共6张
- 热力站管道系统详细设计CAD图纸
- 氨分解制氢站热力系统CAD图纸
- 小区热力管线平面施工图纸.dwg
- 热力站施工CAD图纸,共8张图纸含设计说明
- 空压站热力CAD施工图纸(9张图纸)
- 文化产业园热力站变电站结构施工方案图纸
- 热力站全套经典施工图纸(管道布置图)()
- 机关热力站电气CAD施工图纸(电气设计说明)
- 供热工程热力站CAD施工方案图纸(管线剖面图)
全部评论
评论网友评论仅友表达个人看法,并不表明本站同意其观点,不得发布违反法律法规的内容!
