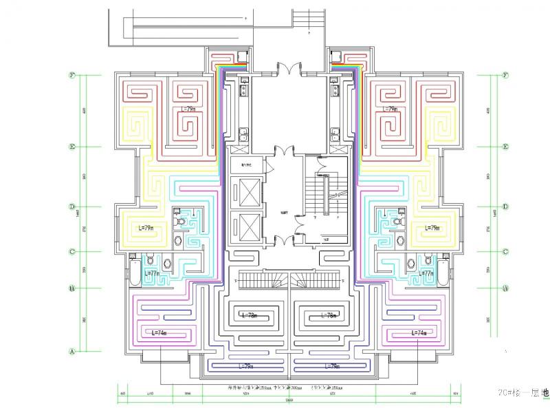
高层住宅楼采暖通风系统设计施工图地暖平面图
- 发布时间:2021-12-10
- 评论次数:0
- 浏览次数:0
- 文件大小:0.36 MB
- 收藏次数:0
-
文件名称:
附件-996098098860857777.rar
住宅楼采暖设计图纸下载
- 住宅楼采暖设计CAD图纸
- 某广场住宅楼采暖设计cad施工图纸和采暖干管系统图
- 多层住宅楼辐射采暖设计施工图纸
- 小区住宅楼采暖CAD图纸(设计说明)
- 6层住宅楼采暖图纸(设计说明)
- 多层住宅楼采暖设计CAD图纸
- 住宅楼分户采暖设计CAD图纸
- 6层住宅楼采暖设计CAD图纸
- 住宅楼采暖工程设计CAD图纸
- 多层住宅楼采暖设计CAD施工图纸
- 住宅楼分户采暖设计改造CAD图纸
- 多层住宅楼采暖CAD图纸(设计说明)
- 多层住宅楼采暖设计CAD施工图纸
- 住宅楼采暖设计CAD施工图纸
- 高层住宅楼采暖设计全图纸.dwg
- 住宅楼地暖采暖设计图纸.dwg
- 住宅楼采暖设计图纸.dwg
- 小区住宅楼采暖图纸(设计说明).dwg
- 7层住宅楼采暖设计CAD图纸.dwg
- 住宅楼采暖系统设计大样图
全部评论
评论网友评论仅友表达个人看法,并不表明本站同意其观点,不得发布违反法律法规的内容!
