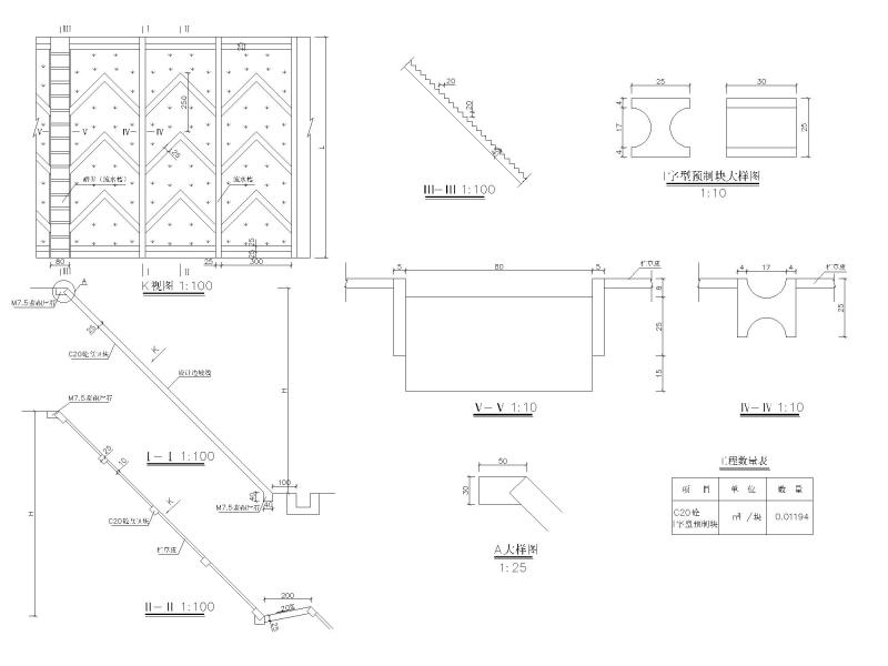
路堑边坡I字型预制块防护设计图纸
- 发布时间:2021-12-09
- 评论次数:0
- 浏览次数:0
- 文件大小:0.11 MB
- 收藏次数:0
- 
								文件名称: 附件-996077980765000775.dwg 附件-996077980765000775.dwg
								边坡防护设计图纸下载
							
						- 路堑边坡网格骨架防护设计图纸
- 路堑边坡拱型骨架防护设计CAD图纸
- 拱形骨架路堑边坡防护CAD详图纸
- 挡土墙及防护工程参考图纸\\路堑、路堤边坡防护通用图纸.dwg
- 高速公路深路堑边坡防护设计CAD图纸
- 路堑高边坡防护加固工程CAD施工图纸设计(深挖路堑).dwg
- 公路工程深挖路堑边坡防护设计图纸(CAD30张)
- 铁路路堑边坡锚杆喷锚支护设计CAD大样图
- 高速公路边坡防护CAD施工图纸(路堑挡土墙).dwg
- 预应力锚索格构梁铁路路堑边坡支护CAD施工图纸
- 路堑边坡检修梯步节点构造CAD详图纸
- 岩质路堑边坡锚杆挂网喷浆支护
- 石方边坡防护设计CAD图纸
- 路基边坡防护设计CAD图纸
- 边坡防护型式CAD图纸集
- 市政道路路堑边坡喷播植草护坡大样图纸CAD图纸(防锈处理)
- 高速公路土质边坡防护设计CAD图纸
- 路基边坡防护通用设计CAD图纸
- 公路挖方边坡防护设计全套CAD图纸
- 道路工程路基边坡防护设计CAD图纸
全部评论
						
							评论网友评论仅友表达个人看法,并不表明本站同意其观点,不得发布违反法律法规的内容!
						
						
 
	              	 
	              	