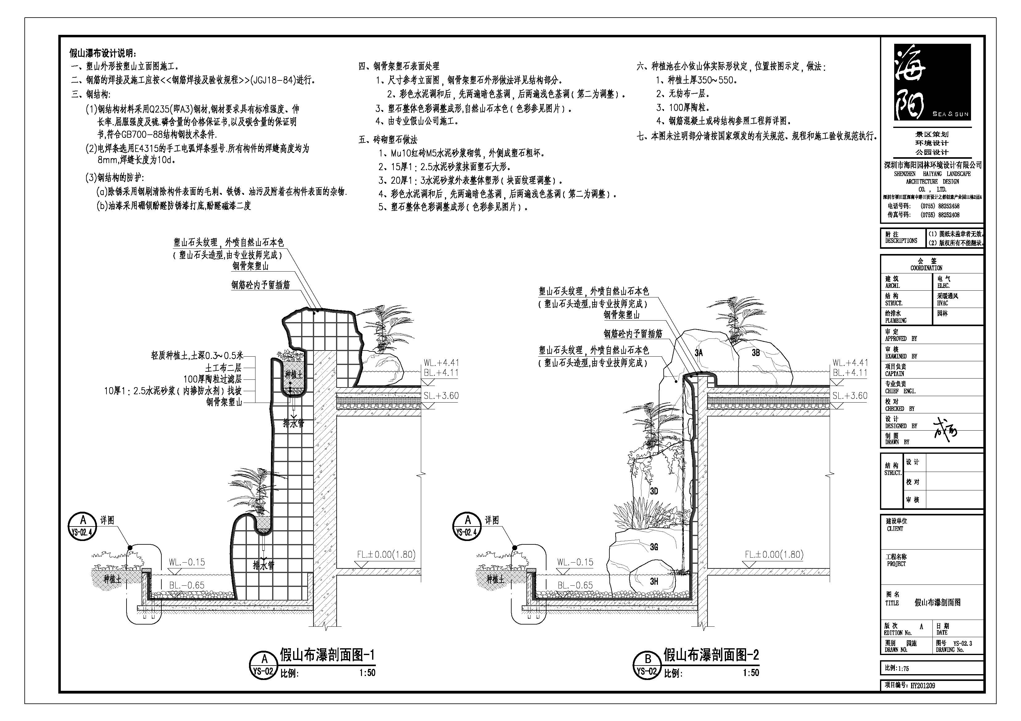
假山瀑布施工图纸设计方案(独家原创).
- 发布时间:2024-01-02
- 评论次数:0
- 浏览次数:0
- 文件大小:5.25 MB
- 收藏次数:0
-
文件名称:
附件-995998808850885767.rar
相关下载
- 清泉假山廊架CAD施工图纸设计方案(独家原创)
- 牌坊施工图纸设计方案(独家原创).
- 小区瀑布假山CAD施工图纸
- 景观木亭CAD施工图纸设计方案(独家原创)
- 假山跌水瀑布详图纸设计
- 假山瀑布CAD详图(5页图纸)
- 高端私人别墅景观细节扩初设计方案(独家原创)
- 假山瀑布建筑结构CAD施工图纸
- 小学景观绿化详细设计CAD施工图纸(独家原创作品).dwg
- 假山设计方案
- 塑石瀑布假山施工详细设计CAD图纸(平面图)
- 小游园设计方案展示(原创)
- 钢筋混凝土结构假山瀑布建筑结构CAD施工图纸(平面图)
- 假山施工CAD图纸(假山平面)
- 度假山庄建筑设计方案文本
- 度假山庄建筑设计方案文本
- 假山施工大样
- 瀑布施工详细设计CAD图纸
- 公园瀑布施工CAD详图纸
- 瀑布施工CAD详图纸
全部评论
评论网友评论仅友表达个人看法,并不表明本站同意其观点,不得发布违反法律法规的内容!
