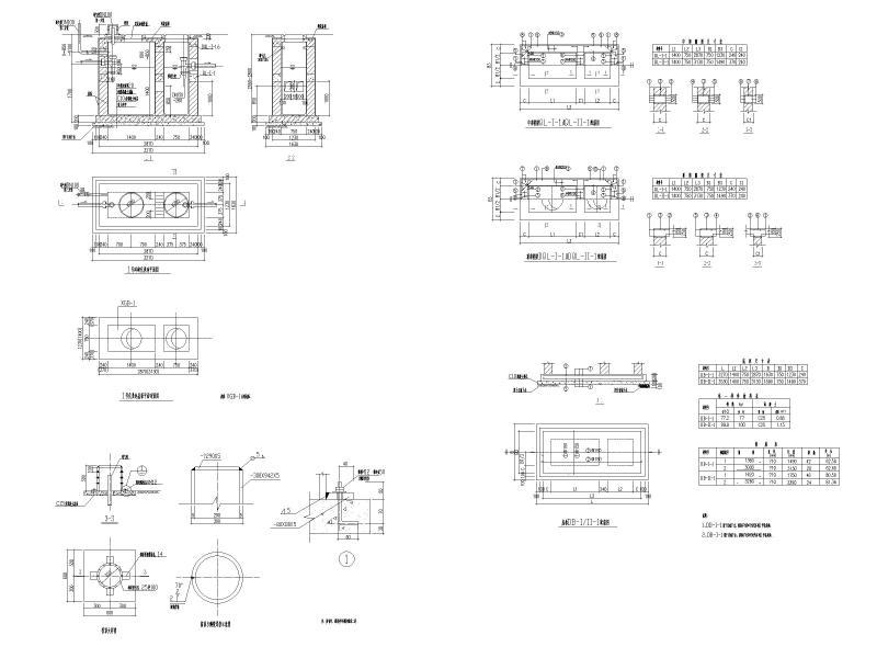
大隆湾化粪池设计施工大样图
- 发布时间:2021-12-09
- 评论次数:0
- 浏览次数:0
- 文件大小:0.34 MB
- 收藏次数:0
- 
								文件名称: 附件-996076779667905657.dwg 附件-996076779667905657.dwg
								化粪池设计施工下载
							
						- 商隆大厦结构设计
- 富隆城投资发展有限公司富隆城项目.dwg
- 湾跨海大桥508050大跨度现浇梁设计图纸.dwg
- 常用砖砌化粪池CAD大样图纸
- 化粪池大样图纸(CAD平面图)
- 化粪池施工图纸.
- 桥梓湾商城会所仿古建筑设计施工CAD大样图
- 湾竹构架节点详图纸设计
- 化粪池详细设计CAD图纸
- 化粪池节点详细设计CAD图纸
- 化粪池节点详细设计CAD图纸
- 月亮湾水景施工CAD图纸
- 地区化粪池CAD图纸
- 化粪池结构设计CAD施工图纸
- 化粪池盖板配筋设计CAD施工图纸
- 钢结构化粪池施工大样图(轻钢结构,共11张)
- 地铁区间盾构施工隧道监测方案25页(拱顶沉降隧道上浮隆陷)
- 10层博隆虹桥商业广场电气施工图纸
- 螺蛳湾树池、花池做法详图纸设计
- 水韵蓝湾现代拱桥节点详图纸设计
全部评论
						
							评论网友评论仅友表达个人看法,并不表明本站同意其观点,不得发布违反法律法规的内容!
						
						
 
	              	 
	              	 
	              	 
	              	