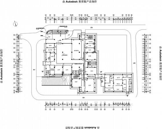
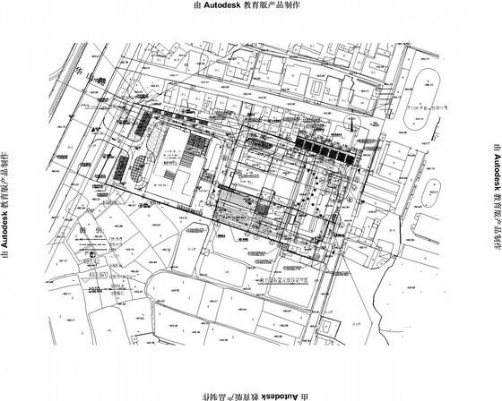
10075平米6层精神病住院楼全套强弱电施工图纸
- 发布时间:2021-11-23
- 评论次数:0
- 浏览次数:0
- 文件大小:2.69 MB
- 收藏次数:0
-
文件名称:
附件-995856089858858960958.rar
精神病强弱电下载
- 6层精神病住院楼强弱电CAD施工图纸(审图意见)
- [7层精神病医院强弱电CAD施工图纸(门诊住院综合楼15年最新设计)
- 高层精神病医院强弱电CAD施工图纸(门诊住院综合楼15年最新设计)
- 高层精神病医院强弱电施工图纸
- 商住楼强弱电全套
- 7层医院门诊住院综合楼强弱电CAD施工图纸
- 6层精神病院全套电气CAD施工图纸
- 大型三甲医院住院楼强弱电CAD施工图纸(知名院)(火灾自动报警)
- 7层医院门诊住院综合楼强弱电CAD施工图纸(火灾自动报警)
- 高层精神病医院电气全套施工图纸弱电平面图
- 精神病疗养院5层住院部建筑CAD图纸扩初CAD图纸(屋顶平面图)
- 酒店全套强弱电CAD施工图纸
- 幼儿园全套强弱电施工图纸.
- 小区16层住宅楼全套强弱电CAD施工图纸
- 12层商住综合楼强弱电全套施工图纸
- 医院住院楼弱电设计CAD图纸
- 办公大楼强弱电全套CAD图纸
- 5层商场强弱电CAD图纸全套
- 办公大楼强弱电全套CAD图纸
- 城市4层精神病院门诊楼建筑方案设计
全部评论
评论网友评论仅友表达个人看法,并不表明本站同意其观点,不得发布违反法律法规的内容!
