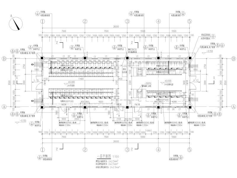
单层框架结构电力开闭所全套施工大样图2017
- 发布时间:2021-12-08
- 评论次数:0
- 浏览次数:0
- 文件大小:10.27 MB
- 收藏次数:0
-
文件名称:
附件-996066550760795779.zip
框架结构结构施工下载
- 单层框架结构开闭所建筑施工大样图2017
- 框架结构开闭所垃圾房建筑施工图纸2017
- 开闭所电气全套CAD图纸
- 单层砖混结构开闭所土建施工大样图2015
- 开闭所电气全套设计CAD图纸.dwg
- 单层框架结构消防水泵站全套施工大样图2017
- 单层框架结构门卫室全套施工大样图2017
- 单层框架结构小学厕所全套施工大样图2017
- 开闭所电气系统图纸
- 单层框架结构小学平房全套施工图纸2017
- 单层框架结构冷库建筑施工CAD图纸2017
- 科研综合楼开闭所CAD施工图纸
- 10KV开闭所电气CAD施工图纸
- 10KV开闭所电气施工CAD图纸.dwg
- 单层框架结构变电所全套施工图纸2018
- 单层框架结构变电所全套施工图纸2016
- 产业园开闭所电气施工大样图
- 10KV开闭所结构CAD图纸
- 10kV开闭所电气CAD图纸
- 开闭所电气一、二次CAD图纸
全部评论
评论网友评论仅友表达个人看法,并不表明本站同意其观点,不得发布违反法律法规的内容!
