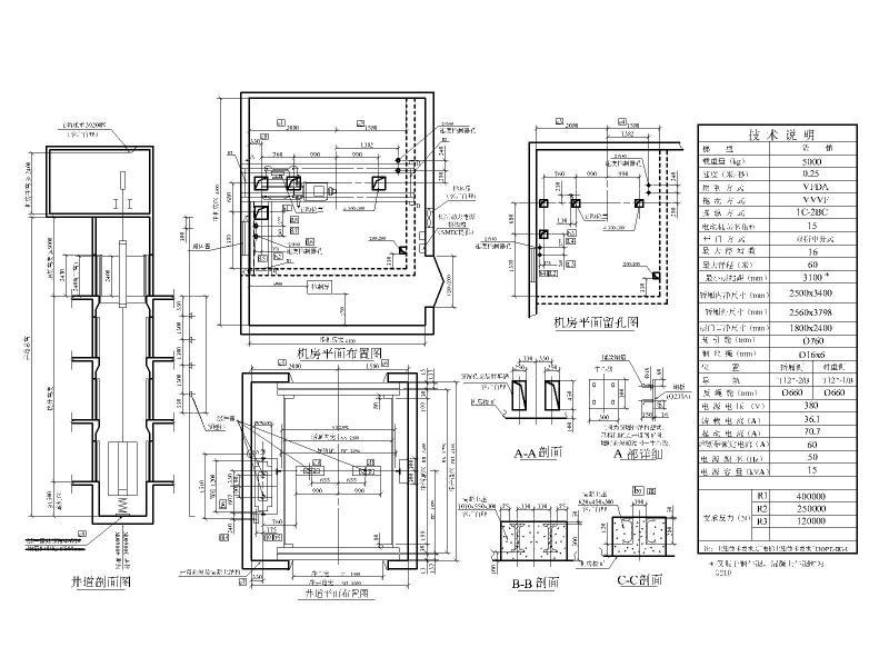
双折中分式货梯钢结构节点详图纸
- 发布时间:2021-12-07
- 评论次数:0
- 浏览次数:0
- 文件大小:0.21 MB
- 收藏次数:0
- 
								文件名称: 附件-996507887876875899.dwg 附件-996507887876875899.dwg
								钢结构图纸节点下载
							
						- 双折式货梯钢结构节点详图纸
- 单开门货梯钢结构节点详图纸
- 双开门货梯钢结构节点详图纸
- 交流双速货梯PLC原理CAD图纸
- 交流双速货梯PLC原理图纸.
- TQJ3000双通JXW货梯节点构造详图纸
- TQJ3000双通XHW货梯节点构造详图纸
- TQJ5000双通VF货梯节点构造详图纸
- TQJ5000双通XHW货梯节点构造详图纸
- 货梯节点构造设计详图纸
- 货梯节点设计构造详图纸
- 货梯节点构造详图纸
- 货梯、菜梯配筋节点构造详图纸
- 电梯、楼梯、货梯节点大样
- 货梯菜梯配筋图纸
- 货梯节点构造详图纸_FO500R
- 货梯节点构造详图纸_THJ5000
- 货梯节点构造详图纸(FO2000L)
- FO3000货梯节点构造详图纸
- FO4000货梯节点构造设计详图纸
全部评论
						
							评论网友评论仅友表达个人看法,并不表明本站同意其观点,不得发布违反法律法规的内容!
						
						
 
	              	 
	              	