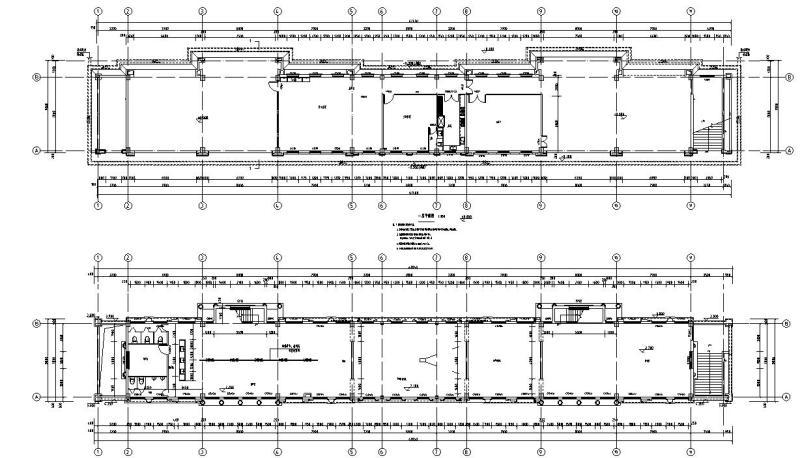
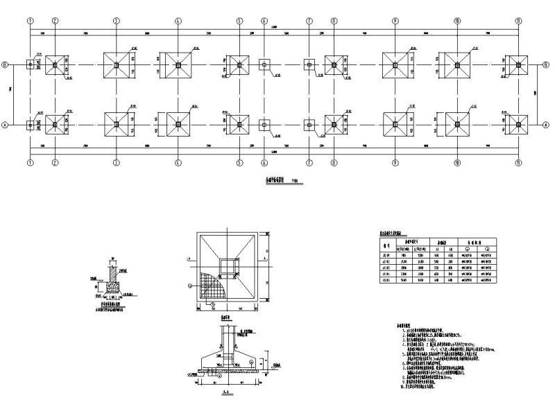
4层欧式售楼部钢结构屋面结构施工方案大样图含建筑
- 发布时间:2021-12-06
- 评论次数:0
- 浏览次数:0
- 文件大小:2.98 MB
- 收藏次数:0
- 
								文件名称: 附件-996979080975068965.dwg 附件-996979080975068965.dwg
								钢结构建筑施工方案下载
							
						- 伞形建筑小品钢结构CAD施工方案图纸
- 钢结构食堂建筑方案设计CAD图纸
- 钢结构厂房建筑方案设计CAD图纸
- 钢结构排架厂房施工方案
- 钢结构高炉施工方案
- 钢结构厂房施工方案
- 钢结构施工方案.pdf
- 大桥钢结构施工方案.doc
- 钢结构厂房结构施工方案图纸(15米跨含建筑施工CAD图纸)
- 钢结构厂房结构施工方案图纸(建筑施工CAD图纸单层)
- 18米单跨厂房钢结构结构施工方案大样图含建筑
- 钢结构活动板房建筑结构CAD施工方案图纸
- 观光电梯建筑及钢结构CAD施工方案图纸
- 两栋建筑之间钢结构连廊CAD施工方案图纸2017
- 单层钢结构仓库建筑方案设计CAD施工图纸
- 原建筑增加钢结构夹层CAD施工方案图纸
- 双层网壳钢结构CAD施工方案图纸(民用建筑设计)
- 双跨45米钢结构库房CAD施工方案图纸(含建筑图纸)
- 2层钢结构排架厂房结构CAD施工方案图纸(建筑水电)
- 公交车站钢结构CAD施工方案图纸(民用建筑设计)
全部评论
						
							评论网友评论仅友表达个人看法,并不表明本站同意其观点,不得发布违反法律法规的内容!
						
						
 
	              	 
	              	 
	              	 
	              	 
	              	